西十里铺南路18号院 1室1厅 南
-
13万
总价
-
1室1厅
户型
-
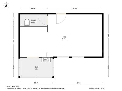
33.32㎡
建筑面积
买房加房产交流群,省钱不踩雷
3000+人正在热聊
加入群聊
-
单价
3902元/平米
- 挂牌价格解析
-
楼层
中楼层/5层
- 咨询楼层
-
套内
28.89㎡
- 咨询套内使用面积
-
楼型
板楼
-
朝向
南
-
装修
简装
-
供暖
自供暖
-
发布
2025-11-03
-
地铁
距5号线月季公园站约590米
-
咨询总首付
首付约4.2万
首付税费及佣金情况 -
深度测评
小区西十里铺南路18号院(中原-月季公园)
-
更多
楼户比、楼层高度、交易历史、抵押信息
周边配套
地址:桐柏路与西十里铺路交叉口向东100米路北
交通综合评分
查看全部5.5
“一般”
超过郑州26.5%的小区
-
地铁公交
10.0
-
城际交通
5.0
本月均价 3410元/m²
环比上月 下跌 11.37%
同比去年 下跌 23.07%
猜你喜欢
同小区其它房源
户型齐全,主打客厅朝南一居
西十里铺南路18号院户型主要有33平-33平的客厅朝南的一居 、49平-50平的户型方正,明厨的二居 、65平-65平的明厨,双卧朝南,主卧朝南的三居 。
*获取完整户型报告,同时会有免费语音讲解服务
-
8159元/㎡
本月挂牌均价
-
0.62%
环比上月
买房加房产交流群,省钱不踩雷
3000+人正在热聊
加入群聊
免责声明:房源信息由网站用户提供,其真实性、合法性由信息提供者负责,最终以政府部门登记备案为准。本网站不声明或保证内容之正确性和可靠性,购买该房屋时,请谨慎核查。入学情况仅凭历史经验总结,在此不承诺升学事宜。请您在签订合同之前,切勿支付任何形式的费用,以免上当受骗。



