小区中间楼栋 一二层复式带院 满五唯一住房 诚心出售
-
750万
总价
-
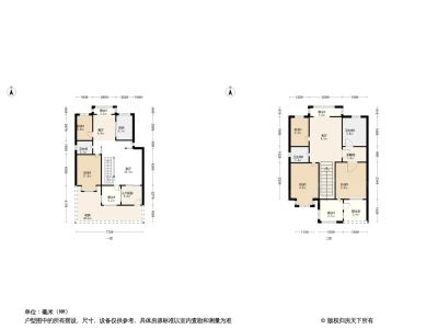
5室2厅
户型
-
267.27㎡
建筑面积
买房加房产交流群,省钱不踩雷
3000+人正在热聊
加入群聊
-
单价
28062元/平米
- 挂牌价格解析
-
楼层
低楼层/4层
- 咨询楼层
-
套内
238.59㎡
- 咨询套内使用面积
-
楼型
塔楼
-
朝向
南北
-
装修
精装
-
供暖
集中供暖
-
发布
2024-04-07
-
地铁
距1号线农业南路站约524米
-
咨询总首付
首付约226万
首付税费及佣金情况 -
深度测评
小区金领时代(郑东新区-黄河南路)
-
更多
楼户比、楼层高度、交易历史、抵押信息
周边配套
地址:金水东路与农业南路交叉口向南200米路西
交通综合评分
查看全部7.9
“较好”
超过郑州65.8%的小区
-
地铁公交
10.0
-
驾车出行
9.0
-
城际交通
4.0
本月均价 25015元/m²
环比上月 上涨 1.72%
同比去年 下跌 3.76%
猜你喜欢
同小区其它房源
户型齐全,主打户型方正,明卫,明厨,主卧朝南四居
金领时代户型主要有167平-274平的户型方正,明卫,明厨,主卧朝南的四居 、120平-154平的明卫,明厨,客厅朝南,双阳台的三居 、227平-273平的户型方正,明厨,明卫,客厅朝南,全明格局,主卧朝南的五居 。
*获取完整户型报告,同时会有免费语音讲解服务
-
15524元/㎡
本月挂牌均价
-
0.64%
环比上月
买房加房产交流群,省钱不踩雷
3000+人正在热聊
加入群聊
免责声明:房源信息由网站用户提供,其真实性、合法性由信息提供者负责,最终以政府部门登记备案为准。本网站不声明或保证内容之正确性和可靠性,购买该房屋时,请谨慎核查。入学情况仅凭历史经验总结,在此不承诺升学事宜。请您在签订合同之前,切勿支付任何形式的费用,以免上当受骗。



