南京东郊 别墅 单层 中式合院 春风江南花园 230万
-
230万元
总价
-
2室2厅2卫
户型
-
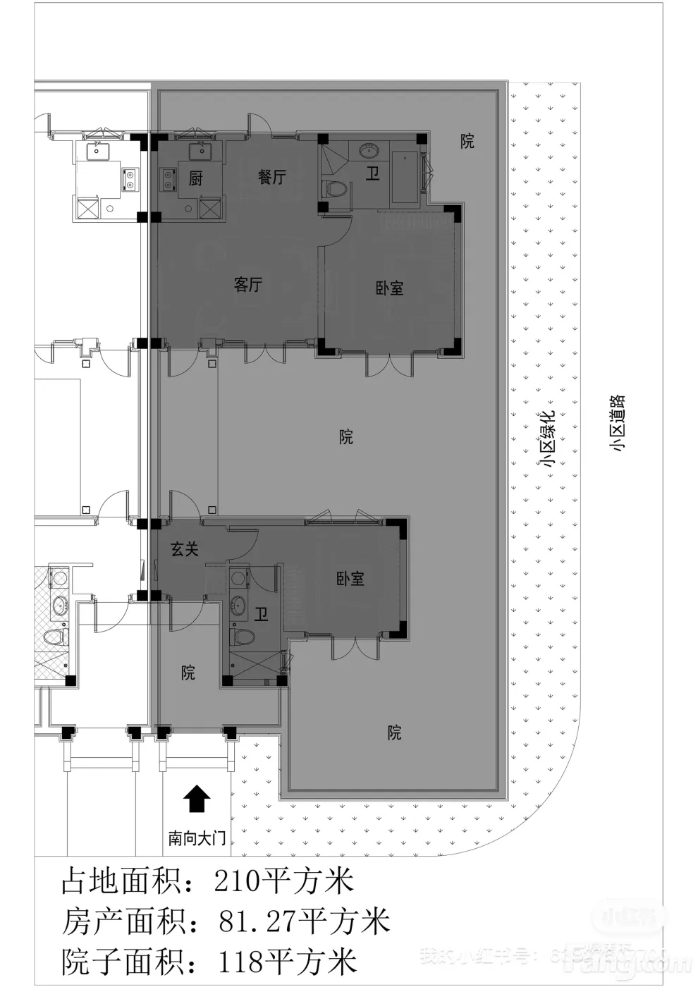
81.27㎡
建筑面积
-
单价
28301元/平米
- 挂牌价格解析
-
楼层
1层
- 咨询楼层
-
套内
暂无数据
- 咨询套内使用面积
-
朝向
南北
-
年代
2021
-
发布
2026-03-12
-
深度测评
小区春风江南花园(句容-句容)
-
更多
楼户比、楼层高度、交易历史、抵押信息
业主自评
-
亦久亦旧704
加入房天下248天
接电时间:09:00-22:00
限墅令执行已经6年了,新房没有了单层别墅的说法,两层的也很稀少。南京东郊春风江南也许是南京周边的特例。 南京应天高架、绕城高速、绕越高速、城东干道直接上宁杭高速郭庄下,两个红绿灯即可到达。 中式 北侧是赤山、东南侧是秦淮河的发源地赤山湖湿地,北靠山,南面水,背山面水,这个懂的自然也懂。 说说户型吧,占地210,产证面积81.27,其余全是院子,达到了120平方,分为了两进,围绕着两个居住套间。鸟语花香下惬意呀 两个女儿从出生到上学前都在这里生活,童趣满屋。现在到南京上学了,闲置下来了,因此寻求有缘人,可租可售。 适合于即将退休离任的前辈们,当然也适合孩子上了大学的青年们,回归自然之用。 重点来了,哈哈,230万出。愿意租的
限墅令执行已经6年了,新房没有了单层别墅的说法,两层的也很稀少。南京东郊春风江南也许是南京周边的特例。 南京应天高架、绕城高速、绕越高速、城东干道直接上宁杭高速郭庄下,两个红绿灯即可到达。 中式 北侧是赤山、东南侧是秦淮河的发源地赤山湖湿地,北靠山,南面水,背山面水,这个懂的自然也懂。 说说户型吧,占地210,产证面积81.27,其余全是院子,达到了120平方,分为了两进,围绕着两个居住套间。鸟语花香下惬意呀 两个女儿从出生到上学前都在这里生活,童趣满屋。现在到南京上学了,闲置下来了,因此寻求有缘人,可租可售。 适合于即将退休离任的前辈们,当然也适合孩子上了大学的青年们,回归自然之用。 重点来了,哈哈,230万出。愿意租的
周边配套
地址:S243
猜你喜欢
同小区其它房源
-
6144元/㎡
本月挂牌均价
-
0.25%
环比上月
联系业主
免责声明:房源信息由网站用户提供,其真实性、合法性由信息提供者负责,最终以政府部门登记备案为准。本网站不声明或保证内容之正确性和可靠性,购买该房屋时,请谨慎核查。入学情况仅凭历史经验总结,在此不承诺升学事宜。请您在签订合同之前,切勿支付任何形式的费用,以免上当受骗。

