新上!京华城育才旁新装未住三房朝南双阳台中间楼层随时看房
-
115万
总价
-
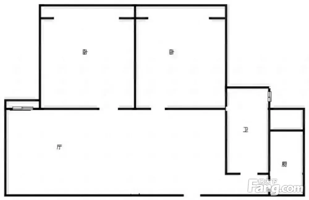
3室1厅1卫
户型
-
97.35㎡
建筑面积
买房加房产交流群,省钱不踩雷
3000+人正在热聊
-
单价
11813元/平米
- 挂牌价格解析
-
楼层
低层/16层
- 咨询楼层
-
套内
96.35㎡
- 咨询套内使用面积
-
楼型
板楼
-
朝向
南北
-
装修
简装修
-
年代
2016
-
发布
2026-03-22
-
咨询总首付
首付约38.8万
首付税费及佣金情况 -
深度测评
小区万豪西花苑(邗江-京华城)
-
更多
楼户比、楼层高度、交易历史、抵押信息
房源描述(1)
-
核心卖点问经纪人
1.【楼层采光】:中间楼层,前方无遮挡,采光不受影响 好位置 2.【户型介绍】:3房2厅,阳光充足 3.【问题】:两证齐全,清晰无纠纷,人能够到场签署合同; 4.【装修介绍】:精装修 5.【售房原因】:房东置换 6.【看房情况】:看房方便 7.【推荐原因】:此房我实地看过,装修很清爽,房间很大,小区离京华城近,生活便利。看房很方便,我手上有钥匙,联系我随时看房。
-
业主心态问经纪人
房东置换,诚心出售,价格可以再谈,欢迎看房,随时恭候
-
小区配套问经纪人
小区地理位置佳,绿化环境优越整洁,居民素质高,物业管理完善,适宜居住
-
服务介绍问经纪人
本人发布的房源均是本人精挑细选,性价比高的房源。从业开始,我就怀着尽己服务 诚信做人 诚心做事的理念服务我所接待的每一个客户。我热爱这份工作,我始终相信客户在我这买的不只是房子,更是对我的信任,对
-
税费分析房贷计算
关于本房的税费信息情况,请电话联系我,我将详细的为您讲解!
-
户型解读问经纪人
房屋拥有相对宽松的尺寸,布局通透,动静分离,设计豪华
周边配套
交通综合评分
查看全部超过扬州30.5%的小区
-
地铁公交
10.0
-
驾车出行
9.0
-
城际交通
4.0
本月均价 12203元/m²
环比上月 上涨 0.01%
同比去年 下跌 19.21%
猜你喜欢
同小区其它房源
户型齐全,主打南北通透,主卧朝南,观景飘窗,双阳台三居
万豪西花苑户型主要有104平-138平的南北通透,主卧朝南,观景飘窗,双阳台的三居 、73平-98平的主卧朝南,卧室带阳台的二居 、63平-72平的南北通透,主卧朝南,干湿分离,双阳台的一居 。
*获取完整户型报告,同时会有免费语音讲解服务
-
13539元/㎡
本月挂牌均价
-
1.08%
环比上月
买房加房产交流群,省钱不踩雷
3000+人正在热聊
- 免费咨询
- 专业服务
- 区域解读
- 户型分析


