新上瘦西湖院子电梯联排别墅264平1100万河景房中兴苑海德
-
1100万
总价
-
6室3厅3卫
户型
-
264㎡
建筑面积
买房加房产交流群,省钱不踩雷
3000+人正在热聊
-
单价
41667元/平米
- 挂牌价格解析
-
楼层
底层/3层
- 咨询楼层
-
套内
264㎡
- 咨询套内使用面积
-
朝向
南
-
装修
毛坯
-
年代
2020
-
发布
2026-03-02
-
地铁
暂无数据
-
咨询总首付
首付约415.9万
首付税费及佣金情况 -
深度测评
小区瘦西湖院子(邗江-沃尔玛)
-
更多
楼户比、楼层高度、交易历史、抵押信息
房源描述(1)
-
核心卖点问经纪人
小区介绍:小区环境优美,周边配套齐全,交通便利,出行非常方便,靠近瘦西湖西门房龄新环境好,有钥匙随时看房 房屋介绍: 1、 房屋年代:2020年 2、 房屋正气,性价比高 3、 朝向:南北 4、 房屋优点:采光充足,视野宽阔,有电梯大院子,送采光井,河景房,有钥匙随时看房
-
业主心态问经纪人
房东置换,诚心出售,欢迎看房,随时恭候,只要你看中房子仍然可以议价,房子是业主托我卖的,如果您在购房过程中,需要咨询或建议,欢迎随时联系我。
-
小区配套问经纪人
繁华地段环境优雅,公园旁,广场,公园,超市,银行等各项生活服务设施配套齐全 交易流程:我为您选房-配房-带您看房签合同-办贷款-交易过户-办理房产证-水电煤气过户-交房。
-
服务介绍问经纪人
本人从事工作多年,大大小小成功案件超过一百起,我热爱这份工作,享受为每一位客户安家后的荣誉感。客户的认可和肯定给了我更多的信心。服务宗旨:以心相交,方成其久远,用心服务每一位客户,以友待之,合理建议,
周边配套
交通综合评分
查看全部超过扬州0.0%的小区
-
地铁公交
10.0
本月均价 22955元/m²
环比上月 下跌 5.68%
同比去年 下跌 20.2%
猜你喜欢
同小区其它房源
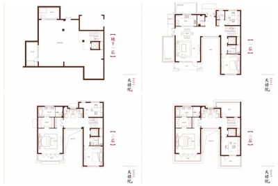
户型齐全,主打全明格局,动静分离四居
瘦西湖院子户型主要有155平-245平的全明格局,动静分离的四居 、260平-260平的全明格局,动静分离的五居 。
*获取完整户型报告,同时会有免费语音讲解服务
-
13340元/㎡
本月挂牌均价
-
1.01%
环比上月
买房加房产交流群,省钱不踩雷
3000+人正在热聊
- 免费咨询
- 专业服务
- 区域解读
- 户型分析


