京华城育才梅岭万科金域华府精装通透三房两卫采光刺眼靠金地酩悦
-
110万
总价
-
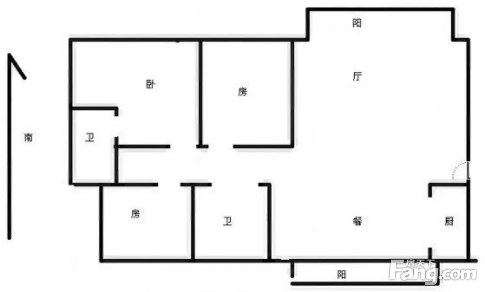
3室2厅2卫
户型
-
126㎡
建筑面积
买房加房产交流群,省钱不踩雷
3000+人正在热聊
-
单价
8730元/平米
- 挂牌价格解析
-
楼层
高层/27层
- 咨询楼层
-
套内
125㎡
- 咨询套内使用面积
-
楼型
板楼
-
朝向
南北
-
装修
简装修
-
年代
2015
-
发布
2026-02-13
-
地铁
暂无数据
-
咨询总首付
首付约36.9万
首付税费及佣金情况 -
深度测评
小区万科金域华府(邗江-京华城)
-
更多
楼户比、楼层高度、交易历史、抵押信息
房源描述(1)
-
核心卖点问经纪人
1.正规。朝向:南北通透,日照充足,采光透气好 2.室内全新装修,厅通阳台,独立厨房、卫生间 3.清晨时,您站在客厅里,沐浴着旭日的光辉,精神饱满啊
-
业主心态问经纪人
房东人很好,任何事情都可以商量,我们尽量都能达成共识,价钱公道且合理。 随时看房,敬待您的入住!舒适度,享受嘉年华!
-
小区配套问经纪人
小区地理位置佳,绿化环境优越整洁,居民素质高,物业管理完善,适宜居住
-
服务介绍问经纪人
您的专属置业顾问 — 您买房...我推荐...你做主 一个电话...我就飞奔过去带您看房!
-
税费分析房贷计算
关于本房的税费信息情况,请电话联系我,我将详细的为您讲解!
-
户型解读问经纪人
房屋拥有相对宽松的尺寸,布局通透,动静分离,设计豪华
周边配套
交通综合评分
查看全部超过扬州29.5%的小区
-
地铁公交
10.0
-
驾车出行
10.0
-
城际交通
4.0
本月均价 11413元/m²
环比上月 下跌 4.47%
同比去年 下跌 21.33%
猜你喜欢
同小区其它房源
户型齐全,主打南北通透,飘窗三居
万科金域华府户型主要有85平-125平的南北通透,飘窗的三居 、144平-147平的南北通透,飘窗的四居 。
*获取完整户型报告,同时会有免费语音讲解服务
-
13539元/㎡
本月挂牌均价
-
1.08%
环比上月
买房加房产交流群,省钱不踩雷
3000+人正在热聊
- 免费咨询
- 专业服务
- 区域解读
- 户型分析


