新上!保真!京华城 和美第 精装3房 带电梯 好楼层随时看房
-
119万
总价
-
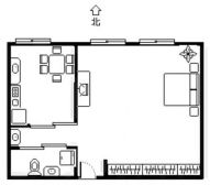
3室2厅1卫
户型
-
108.35㎡
建筑面积
买房加房产交流群,省钱不踩雷
3000+人正在热聊
-
单价
10983元/平米
- 挂牌价格解析
-
楼层
中层/11层
- 咨询楼层
-
套内
107.35㎡
- 咨询套内使用面积
-
楼型
板楼
-
朝向
南北
-
装修
简装修
-
年代
2015
-
发布
2026-01-22
-
地铁
暂无数据
-
咨询总首付
首付约41.4万
首付税费及佣金情况 -
深度测评
小区和美第(邗江-京华城)
-
更多
楼户比、楼层高度、交易历史、抵押信息
房源描述(1)
-
核心卖点问经纪人
税费简介:该房已满2年,为您省去了高额的营业税。 地理位置:位于市区繁华地段,京华城商圈,万达商圈,润辉广场,大润发,邗江中学,南 师大,梅苑双语; 产权明细:产权人清晰,无任何债务纠纷,产权人可到场签字。 推荐理由:采光充足,楼层好,小区物业好,性价比高。 配套设施:附近,超市,医院,菜场,银行等,出门就是公交车,生活配套齐全。 业主心态
-
业主心态问经纪人
产证齐全,产权清晰无纠纷,房东诚心卖,房东心态很好,只为 ,只要看中价格好谈,看房随时有空,恭贺您光临!
-
小区配套问经纪人
小区地理位置佳,绿化环境优越整洁,居民素质高,物业管理完善,适宜居住
-
服务介绍问经纪人
【置业】专业精神,得信任!公司多多,欢迎来电咨询,本人从事房产行业多年,有丰富的经验,对小区都熟悉了解行情,服务热情,合理收费,相信我的专业,为您置业安家保驾护航!交易流程:选房配房带您实
-
税费分析房贷计算
关于本房的税费信息情况,请电话联系我,我将详细的为您讲解!
-
户型解读问经纪人
房屋拥有相对宽松的尺寸,布局通透,动静分离,设计豪华
周边配套
交通综合评分
查看全部超过扬州78.7%的小区
-
地铁公交
10.0
-
驾车出行
9.0
-
城际交通
4.0
本月均价 14311元/m²
环比上月 上涨 2.76%
同比去年 下跌 11.74%
猜你喜欢
同小区其它房源
-
13947元/㎡
本月挂牌均价
-
1.09%
环比上月
买房加房产交流群,省钱不踩雷
3000+人正在热聊
- 免费咨询
- 专业服务
- 区域解读
- 户型分析


