豪装70!飞机户 中上层 景观房京华青庭 昌建阳光名门香颂
-
218.8万
总价
-
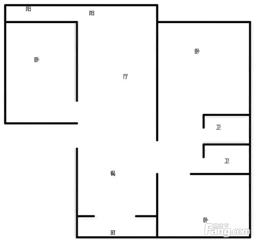
3室2厅2卫
户型
-
143㎡
建筑面积
买房加房产交流群,省钱不踩雷
3000+人正在热聊
-
单价
15301元/平米
- 挂牌价格解析
-
楼层
中层/31层
- 咨询楼层
-
套内
142㎡
- 咨询套内使用面积
-
楼型
板楼
-
朝向
南
-
装修
简装修
-
年代
2019
-
发布
2026-01-13
-
咨询总首付
首付约75.2万
首付税费及佣金情况 -
深度测评
小区京华青庭(邗江-京华城)
-
更多
楼户比、楼层高度、交易历史、抵押信息
房源描述(1)
-
核心卖点问经纪人
您好! 本房源有效,本人始终相信:只有真诚对待每一位客户才会获得客户的信任! 已下为房源信息: 1.【楼层采光】:阳光充足 好位置 2.【户型介绍】:得房率很高 3.【问题】:两证齐全,清晰无纠纷,人能够到场签署合同; 4.【装修介绍】:精装 5.【售房原因】:房东工作调动 6.【看房情况】:看房方便
-
业主心态问经纪人
房东已委托挂牌,诚心出售,感兴趣的随时咨询,欢迎您看房
-
小区配套问经纪人
小区地理位置佳,绿化环境优越整洁,居民素质高,物业管理完善,适宜居住
-
服务介绍问经纪人
本人从事房产行业多年,有丰富的经验,对小区都熟悉了解行情,服务热情,合理收费,为您的置业保驾护航。 如果您看到比较适合的房源,请尽快约我,带您实地看房。您在购房过程中、需要咨询贷款或建议,可随时联系我
-
税费分析房贷计算
关于本房的税费信息情况,请电话联系我,我将详细的为您讲解!
-
户型解读问经纪人
房屋拥有相对宽松的尺寸,布局通透,动静分离,设计豪华
周边配套
交通综合评分
查看全部超过扬州61.5%的小区
-
地铁公交
10.0
-
驾车出行
10.0
-
城际交通
4.0
本月均价 14867元/m²
环比上月 上涨 0.65%
同比去年 下跌 15.7%
户型齐全,主打全明格局,动静分离三居
京华青庭户型主要有104平-159平的全明格局,动静分离的三居 、175平-194平的全明格局,动静分离的四居 、95平-95平的全明格局,动静分离的二居 。
*获取完整户型报告,同时会有免费语音讲解服务
-
13947元/㎡
本月挂牌均价
-
1.09%
环比上月
买房加房产交流群,省钱不踩雷
3000+人正在热聊
- 免费咨询
- 专业服务
- 区域解读
- 户型分析


