含汽车位,飞机户型,南北通透精装修电梯房麦德龙超市万达商圈。
-
92.8万
总价
-
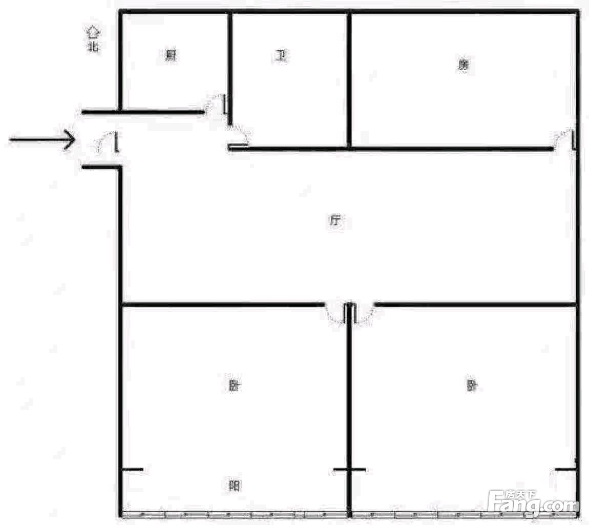
2室2厅1卫
户型
-
88㎡
建筑面积
买房加房产交流群,省钱不踩雷
3000+人正在热聊
加入群聊
-
单价
10545元/平米
- 挂牌价格解析
-
楼层
中层/18层
- 咨询楼层
-
套内
暂无数据
- 咨询套内使用面积
-
朝向
南北
-
装修
精装修
-
年代
2016
-
发布
2026-01-11
-
地铁
暂无数据
-
咨询总首付
首付约31.3万
首付税费及佣金情况 -
深度测评
小区月城熙庭(邗江-红星美凯龙)
-
更多
楼户比、楼层高度、交易历史、抵押信息
房源描述(1)
-
核心卖点问经纪人
送产权车位一个,带电梯,楼层好万达商圈吃喝玩乐购一体,麦德龙超市,交通方便
周边配套
地址:江阳西路与润扬路交汇处东南角(麦德龙超市南面)
交通综合评分
查看全部8.2
“较好”
超过扬州7.7%的小区
-
地铁公交
10.0
-
驾车出行
10.0
-
城际交通
4.0
本月均价 13039元/m²
环比上月 持平
同比去年 下跌 6.79%
猜你喜欢
同小区其它房源
户型齐全,主打多功能地下室,露台其他居
月城熙庭户型主要有218平-271平的多功能地下室,露台的其他居 、116平-128平的主卧带卫,客厅朝南,主卧朝南的三居 、87平-87平的客厅朝南,主卧朝南的二居 。
*获取完整户型报告,同时会有免费语音讲解服务
-
11952元/㎡
本月挂牌均价
-
0.21%
环比上月
买房加房产交流群,省钱不踩雷
3000+人正在热聊
加入群聊
- 免费咨询
- 专业服务
- 区域解读
- 户型分析
免责声明:房源信息由网站用户提供,其真实性、合法性由信息提供者负责,最终以政府部门登记备案为准。本网站不声明或保证内容之正确性和可靠性,购买该房屋时,请谨慎核查。入学情况仅凭历史经验总结,在此不承诺升学事宜。请您在签订合同之前,切勿支付任何形式的费用,以免上当受骗。

