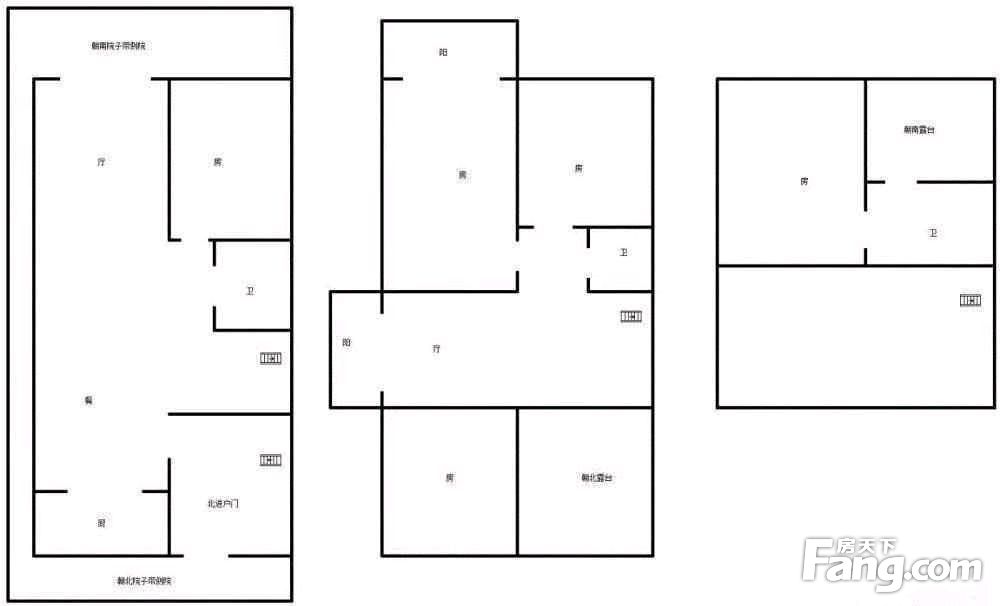
联排别墅,带前后侧大院子,地下室,汽车库,车位多个,随时看房
-
520万
总价
-
6室2厅3卫
户型
-
293㎡
建筑面积
买房加房产交流群,省钱不踩雷
3000+人正在热聊
加入群聊
-
单价
17747元/平米
- 挂牌价格解析
-
楼层
3层
- 咨询楼层
-
套内
暂无数据
- 咨询套内使用面积
-
楼型
联排
-
朝向
南
-
装修
毛坯
-
年代
2015
-
发布
2026-01-21
-
地铁
暂无数据
-
咨询总首付
首付约197.2万
首付税费及佣金情况 -
深度测评
小区水晶城别墅(邗江-蒋王大润发)
-
更多
楼户比、楼层高度、交易历史、抵押信息
房源描述(1)
-
核心卖点问经纪人
联排别墅,前后侧院子280平,地下室50平,汽车库车位,前后侧大露台多个,蒋王大润发旁,京华城商圈吃喝玩乐购一体 交通方便。
周边配套
地址:位于文汇西路与博物馆路交叉口的东南角
交通综合评分
查看全部8.2
“较好”
超过扬州35.8%的小区
-
地铁公交
10.0
-
驾车出行
10.0
-
城际交通
4.0
-
12868元/㎡
本月挂牌均价
-
1.33%
环比上月
买房加房产交流群,省钱不踩雷
3000+人正在热聊
加入群聊
- 免费咨询
- 专业服务
- 区域解读
- 户型分析
免责声明:房源信息由网站用户提供,其真实性、合法性由信息提供者负责,最终以政府部门登记备案为准。本网站不声明或保证内容之正确性和可靠性,购买该房屋时,请谨慎核查。入学情况仅凭历史经验总结,在此不承诺升学事宜。请您在签订合同之前,切勿支付任何形式的费用,以免上当受骗。

