一墅传三代 古运河边 美的大河 上叠 房东急售 价格好谈
-
320万
总价
-
5室2厅4卫
户型
-
220㎡
建筑面积
买房加房产交流群,省钱不踩雷
3000+人正在热聊
加入群聊
-
单价
14545元/平米
- 挂牌价格解析
-
楼层
6层
- 咨询楼层
-
套内
暂无数据
- 咨询套内使用面积
-
楼型
独栋
-
朝向
南
-
装修
毛坯
-
年代
2023
-
发布
2025-07-30
-
咨询总首付
首付约124.2万
首付税费及佣金情况 -
深度测评
小区美的禹洲·大河别墅(邗江-城北乡)
-
更多
楼户比、楼层高度、交易历史、抵押信息
房源描述(1)
-
核心卖点问经纪人
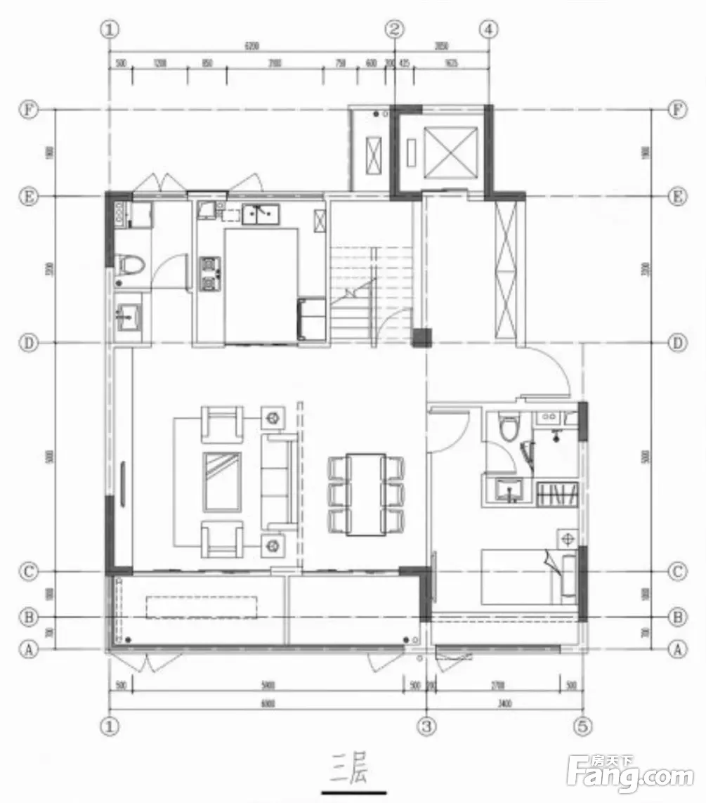
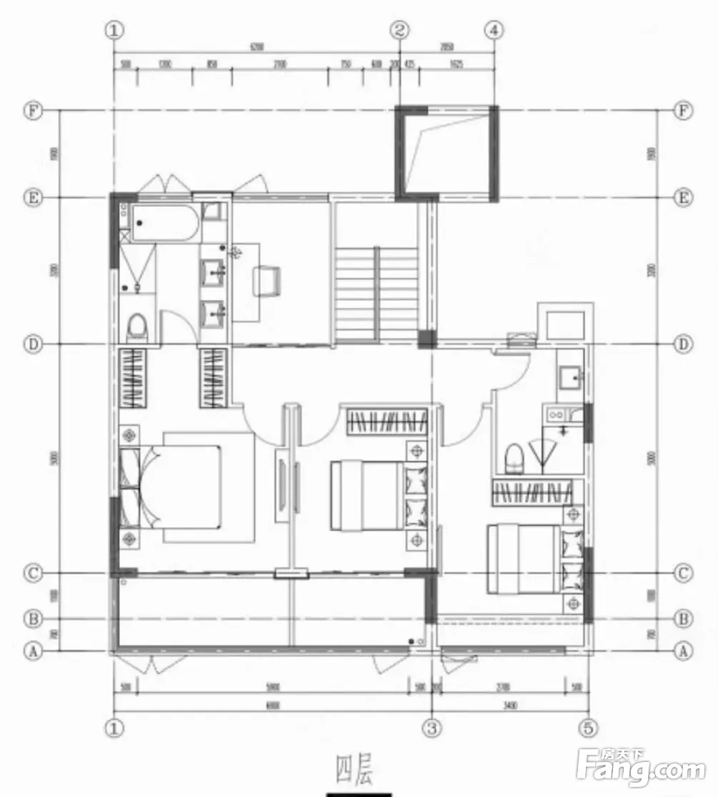
【房屋简介】2024年建成的大平层别墅,五居室设计,空间宽敞明亮。客厅与餐厅可独立,楼层优越,朝向良好,采光充足。清水房状态,直接装修,节省费用。物业类型为别墅,电梯房,70年产权,售价320万。产权类型为商品房住宅,购入年限满二 ,产权合理。实拍全景展示,内部环境优雅,绿化多,休闲设施齐全,提供舒适居住体验。
-
业主心态问经纪人
《业主心态》业主因工作调动,忍痛割爱出售爱房。与我关系融洽,对我极有信心,愿意全程配合交易,议价空间大,随时可看房,手续齐全,期待与您友好合作,共创美好!
-
小区配套问经纪人
位置:小区地理位置佳,绿化率高,居民素质高 配套:有健身器材,小型篮球场,可供小区居民使用 车位:停车位充足,建有地上停车场和地下车库 保安:小区内24保安巡逻
-
服务介绍问经纪人
本人从事房多年,公司有大量好房源,欢迎进入我的店铺查看,欢迎随时电话咨询,相信我的专业,为您置业安家保驾护航。
周边配套
地址:东至运河北路、南至古运河、北至竹西路、西至三星路
-
10717元/㎡
本月挂牌均价
-
1.43%
环比上月
买房加房产交流群,省钱不踩雷
3000+人正在热聊
加入群聊
- 免费咨询
- 专业服务
- 区域解读
- 户型分析
免责声明:房源信息由网站用户提供,其真实性、合法性由信息提供者负责,最终以政府部门登记备案为准。本网站不声明或保证内容之正确性和可靠性,购买该房屋时,请谨慎核查。入学情况仅凭历史经验总结,在此不承诺升学事宜。请您在签订合同之前,切勿支付任何形式的费用,以免上当受骗。


