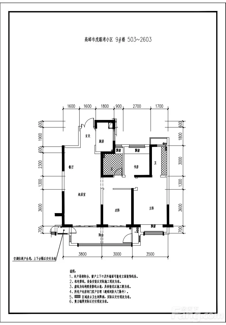
高邮 吾悦·虎踞龙蟠 3室2厅
-
69.8万元
总价
-
3室2厅2卫
户型
-
115㎡
建筑面积
买房加房产交流群,省钱不踩雷
3000+人正在热聊
加入群聊
-
单价
6070元/平米
- 挂牌价格解析
-
楼层
中层/29层
- 咨询楼层
-
套内
暂无数据
- 咨询套内使用面积
-
朝向
南北
-
发布
2025-02-12
-
咨询总首付
首付约26.9万
首付税费及佣金情况 -
深度测评
小区吾悦·虎踞龙蟠(高邮-高邮市)
-
更多
楼户比、楼层高度、交易历史、抵押信息
业主自评
-
江南烟雨173
加入房天下449天
接电时间:00:00-00:00
周边配套
地址:海潮东路与捍海路交会处
交通综合评分
查看全部6.7
“较好”
超过扬州26.3%的小区
-
地铁公交
10.0
-
驾车出行
9.0
本月均价 暂无均价
环比上月 持平
同比去年 持平 持平
-
13025元/㎡
本月挂牌均价
-
1.14%
环比上月
买房加房产交流群,省钱不踩雷
3000+人正在热聊
加入群聊
联系业主
免责声明:房源信息由网站用户提供,其真实性、合法性由信息提供者负责,最终以政府部门登记备案为准。本网站不声明或保证内容之正确性和可靠性,购买该房屋时,请谨慎核查。入学情况仅凭历史经验总结,在此不承诺升学事宜。请您在签订合同之前,切勿支付任何形式的费用,以免上当受骗。

