南向精装修宽敞三居室,舒适生活在斓珊小区
-
174.08万元
总价
-
130.57㎡
建筑面积
买房加房产交流群,省钱不踩雷
3000+人正在热聊
加入群聊
-
单价
13332元/平米
- 挂牌价格解析
-
套内
暂无数据
- 咨询套内使用面积
-
朝向
南
-
发布
2026-01-15
-
地铁
暂无数据
-
咨询总首付
首付约66.2万
首付税费及佣金情况 -
深度测评
小区斓珊小区(江都-仙女镇)
-
更多
楼户比、楼层高度、交易历史、抵押信息
业主自评
-
水上街市
加入房天下2023天
接电时间:09:00-21:00
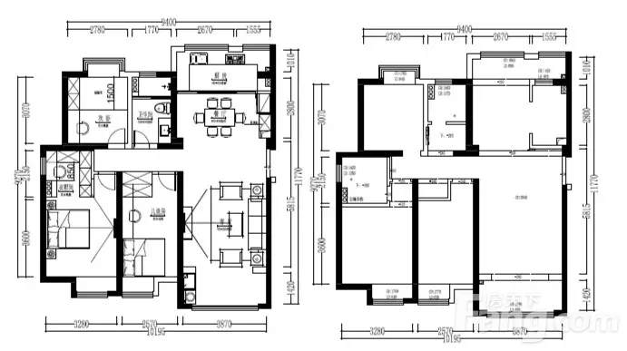
【臻品南向三居】斓珊小区130.57㎡通透美宅 核心亮点速览 ▸ 户型:3室2厅2卫 双阳台,南北通透 精装修 ▸ 面积:建面130.57㎡,功能分区科学,动静分离 ▸售价:174.8万(车位另议) 户型优势 1. 阳光满溢的南向生活 双面采光:主次卧 客厅三南向,全天候自然光线流转,冬暖夏凉触手可及。 通透双阳台:前厅观景阳台收纳四季风光,后厨生活阳台便捷实用,空间利用率高! 2. 三代同堂的理想布局 独立私密:主卧套间带独立卫浴,老人房、儿童房互不干扰,家庭生活从容有序。 超宽厅堂:约6米横厅设计,聚会、亲子互动、居家办公皆可自由切换。 🌳 小区环境·诗意栖居 1. 园林式社区 高绿化覆盖率,长江源头湿地公园、健身步道、儿童乐园环绕,推窗即景楼中氧吧。 2. 全维生活配套 便捷出行:沪陕启扬高速、金湾快速三**到达,高铁东站五**,交通便捷 。 烟火气十足:周边超市、菜场、餐饮、学校、医院环伺,5**满足生活所需。 3. 高品位物业服务 24小时安保、智能门禁、定期设施维护,居住**无忧。 追求舒适体验、注重生活品质,此房将是您的不二之选!
【臻品南向三居】斓珊小区130.57㎡通透美宅 核心亮点速览 ▸ 户型:3室2厅2卫 双阳台,南北通透 精装修 ▸ 面积:建面130.57㎡,功能分区科学,动静分离 ▸售价:174.8万(车位另议) 户型优势 1. 阳光满溢的南向生活 双面采光:主次卧 客厅三南向,全天候自然光线流转,冬暖夏凉触手可及。 通透双阳台:前厅观景阳台收纳四季风光,后厨生活阳台便捷实用,空间利用率高! 2. 三代同堂的理想布局 独立私密:主卧套间带独立卫浴,老人房、儿童房互不干扰,家庭生活从容有序。 超宽厅堂:约6米横厅设计,聚会、亲子互动、居家办公皆可自由切换。 🌳 小区环境·诗意栖居 1. 园林式社区 高绿化覆盖率,长江源头湿地公园、健身步道、儿童乐园环绕,推窗即景楼中氧吧。 2. 全维生活配套 便捷出行:沪陕启扬高速、金湾快速三**到达,高铁东站五**,交通便捷 。 烟火气十足:周边超市、菜场、餐饮、学校、医院环伺,5**满足生活所需。 3. 高品位物业服务 24小时安保、智能门禁、定期设施维护,居住**无忧。 追求舒适体验、注重生活品质,此房将是您的不二之选!
联系业主
免责声明:房源信息由网站用户提供,其真实性、合法性由信息提供者负责,最终以政府部门登记备案为准。本网站不声明或保证内容之正确性和可靠性,购买该房屋时,请谨慎核查。入学情况仅凭历史经验总结,在此不承诺升学事宜。请您在签订合同之前,切勿支付任何形式的费用,以免上当受骗。

