悉尼城3室2厅2卫南北朝向33.00万元出售
-
33万元
总价
-
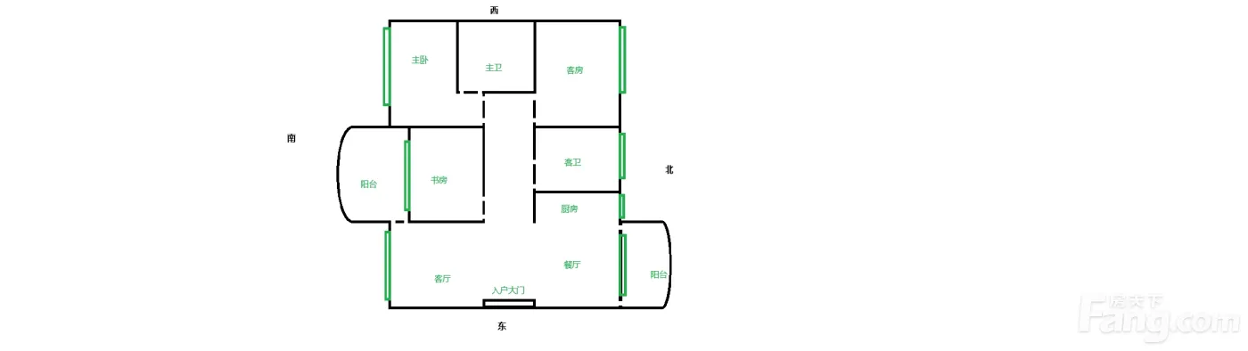
3室2厅2卫
户型
-
123.4㎡
建筑面积
-
单价
2674元/平米
- 挂牌价格解析
-
楼层
中层/6层
- 咨询楼层
-
套内
暂无数据
- 咨询套内使用面积
-
朝向
南北
-
发布
2026-03-04
-
深度测评
小区悉尼城(江南区-江南公园)
-
更多
楼户比、楼层高度、交易历史、抵押信息
业主自评
-
余生浅末495
加入房天下65天
接电时间:09:00-22:00
小区原名:悉尼城,现更名为:江南华府,楼梯房,简单装修,布局合理,南北通透,可读玉林市万秀小学和第八中学。两所学校走路10**可到。小区周边配套成熟,交通方便,停车方便,业主可免费停车。
小区原名:悉尼城,现更名为:江南华府,楼梯房,简单装修,布局合理,南北通透,可读玉林市万秀小学和第八中学。两所学校走路10**可到。小区周边配套成熟,交通方便,停车方便,业主可免费停车。
周边配套
地址:江南大道
交通综合评分
查看全部7.0
“较好”
超过玉林33.9%的小区
-
地铁公交
10.0
-
驾车出行
6.0
-
城际交通
4.0
本月均价 3783元/m²
环比上月 下跌 2%
同比去年 下跌 7.06%
-
4143元/㎡
本月挂牌均价
-
0.03%
环比上月
联系业主
免责声明:房源信息由网站用户提供,其真实性、合法性由信息提供者负责,最终以政府部门登记备案为准。本网站不声明或保证内容之正确性和可靠性,购买该房屋时,请谨慎核查。入学情况仅凭历史经验总结,在此不承诺升学事宜。请您在签订合同之前,切勿支付任何形式的费用,以免上当受骗。

