双拼别墅 龙盘湖世纪山水 带100平花园 198万
-
198万
总价
-
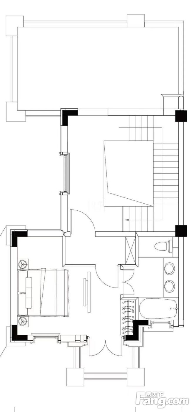
5室3厅3卫
户型
-
231㎡
建筑面积
-
单价
8571元/平米
- 挂牌价格解析
-
楼层
底层/3层
- 咨询楼层
-
套内
暂无数据
- 咨询套内使用面积
-
楼型
钢混
-
朝向
南
-
装修
毛坯
-
年代
2016
-
发布
2024-11-15
-
深度测评
小区中铁龙盘湖世纪山水(伍家岗-五一广场)
-
更多
楼户比、楼层高度、交易历史、抵押信息
房源描述(1)
周边配套
地址:伍临路101号
交通综合评分
查看全部7.0
“较好”
超过宜昌2.3%的小区
-
地铁公交
10.0
-
驾车出行
10.0
本月均价 8653元/m²
环比上月 上涨 1%
同比去年 上涨 10.23%
猜你喜欢
同小区其它房源
户型齐全,主打三居
中铁龙盘湖世纪山水户型主要有99平-126平的的三居 、146平-147平的全明格局,干湿分离的四居 、163平-231平的南北通透,户型方正的其他居 。
*获取完整户型报告,同时会有免费语音讲解服务
-
7077元/㎡
本月挂牌均价
-
0.67%
环比上月
- 免费咨询
- 专业服务
- 区域解读
- 户型分析
免责声明:房源信息由网站用户提供,其真实性、合法性由信息提供者负责,最终以政府部门登记备案为准。本网站不声明或保证内容之正确性和可靠性,购买该房屋时,请谨慎核查。入学情况仅凭历史经验总结,在此不承诺升学事宜。请您在签订合同之前,切勿支付任何形式的费用,以免上当受骗。

