诚意出售久隆独体别墅 看中价可谈
-
598万
总价
-
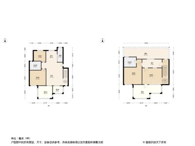
4室2厅
户型
-
203㎡
建筑面积
-
单价
29459元/平米
- 挂牌价格解析
-
楼层
1层
- 咨询楼层
-
套内
203㎡
- 咨询套内使用面积
-
楼型
板楼
-
朝向
南北
-
装修
精装
-
供暖
暂无数据
-
发布
2023-02-06
-
地铁
暂无数据
-
深度测评
小区久隆凤凰城(铜山-久隆凤凰城)
-
更多
楼户比、楼层高度、交易历史、抵押信息
周边配套
地址:铜山区彭祖路南11路19路终点站
交通综合评分
查看全部7.0
“较好”
超过徐州59.4%的小区
-
地铁公交
10.0
-
驾车出行
10.0
猜你喜欢
同小区其它房源
户型齐全,主打户型方正,客厅朝南,主卧朝南五居
久隆凤凰城户型主要有168平-384平的户型方正,客厅朝南,主卧朝南的五居 、117平-178平的户型方正,明卫,明厨,双卧朝南的三居 、155平-274平的明卫,明厨,客厅朝南,全明格局,双阳台,主卧朝南的四居 。
*获取完整户型报告,同时会有免费语音讲解服务
-
9372元/㎡
本月挂牌均价
-
1.27%
环比上月
免责声明:房源信息由网站用户提供,其真实性、合法性由信息提供者负责,最终以政府部门登记备案为准。本网站不声明或保证内容之正确性和可靠性,购买该房屋时,请谨慎核查。入学情况仅凭历史经验总结,在此不承诺升学事宜。请您在签订合同之前,切勿支付任何形式的费用,以免上当受骗。



