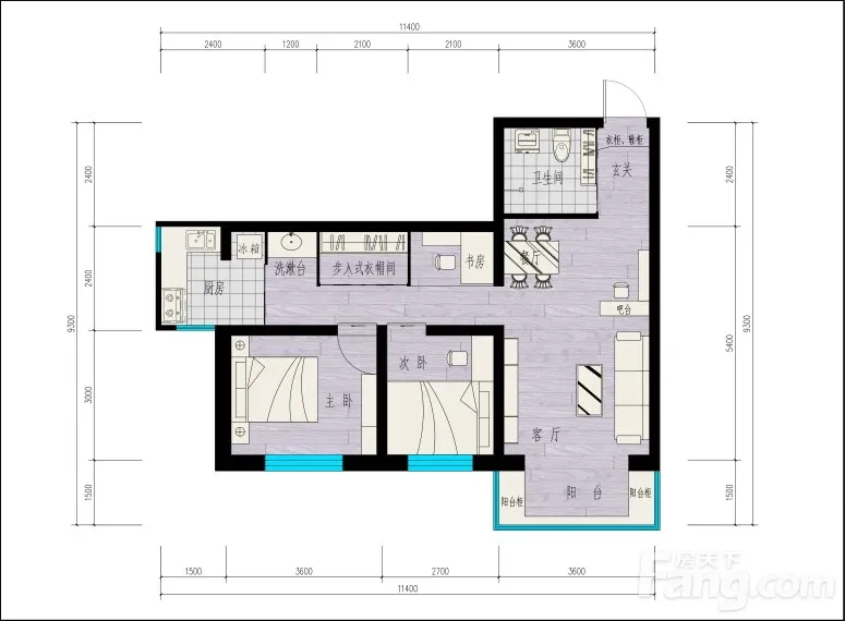
沙依巴克区 桥南小区 2室2厅
-
50万元
总价
-
2室2厅1卫
户型
-
77.32㎡
建筑面积
-
单价
6467元/平米
- 挂牌价格解析
-
楼层
顶层/6层
- 咨询楼层
-
套内
暂无数据
- 咨询套内使用面积
-
朝向
南
-
发布
2026-02-19
-
深度测评
小区桥南小区(沙依巴克区-西北路)
-
更多
楼户比、楼层高度、交易历史、抵押信息
业主自评
-
森眸暖光748
加入房天下533天
接电时间:09:00-22:00
小区区域位置非常好,周边配套完善,距离西虹路公交站50米,距离友好商圈,大小西门,华凌商圈500米。周边有红山市场,劝业市场,买菜方便。乌鲁木齐市中医院,军区总医院,医科大学附属**医院等三甲医院就在旁边,走路就能到。上学方便,周边有红山公园,人民公园等大型公园。交通方便,购物方便,就医方便,孩子上学方便,休闲游玩方便。是您刚需置业的不二选择,房子是11年装修的,就墙被小孩画的比较脏,入住花个万八千装修就能入住,当时装修花了很多心思,在同小区来说属于上等房源,朝向好,在家就能看到红山公园。
小区区域位置非常好,周边配套完善,距离西虹路公交站50米,距离友好商圈,大小西门,华凌商圈500米。周边有红山市场,劝业市场,买菜方便。乌鲁木齐市中医院,军区总医院,医科大学附属**医院等三甲医院就在旁边,走路就能到。上学方便,周边有红山公园,人民公园等大型公园。交通方便,购物方便,就医方便,孩子上学方便,休闲游玩方便。是您刚需置业的不二选择,房子是11年装修的,就墙被小孩画的比较脏,入住花个万八千装修就能入住,当时装修花了很多心思,在同小区来说属于上等房源,朝向好,在家就能看到红山公园。
周边配套
地址:桥南小区西虹路
交通综合评分
查看全部4.0
“一般”
超过乌鲁木齐42.2%的小区
-
地铁公交
10.0
本月均价 7042元/m²
环比上月 下跌 2.83%
同比去年 下跌 20.14%
猜你喜欢
同小区其它房源
-
8337元/㎡
本月挂牌均价
-
0.23%
环比上月
联系业主
免责声明:房源信息由网站用户提供,其真实性、合法性由信息提供者负责,最终以政府部门登记备案为准。本网站不声明或保证内容之正确性和可靠性,购买该房屋时,请谨慎核查。入学情况仅凭历史经验总结,在此不承诺升学事宜。请您在签订合同之前,切勿支付任何形式的费用,以免上当受骗。

