急售一楼三居 信合世纪城海棠苑 桂花苑 玫瑰苑 久居名园
-
29.8万
总价
-
3室2厅2卫
户型
-
120㎡
建筑面积
-
单价
2483元/平米
- 挂牌价格解析
-
楼层
底层/32层
- 咨询楼层
-
套内
暂无数据
- 咨询套内使用面积
-
楼型
板楼
-
朝向
南北
-
装修
精装修
-
发布
2026-01-07
-
深度测评
小区信合世纪城海棠苑(固始县-固始县)
-
更多
楼户比、楼层高度、交易历史、抵押信息
房源描述(1)
-
核心卖点问经纪人
【房源概述】三室两厅卫,空间布局合理,南北通透,通风采光俱佳。餐厅客厅可分离,功能区分明确,居住舒适度高。电梯入户,生活便捷。 【装修情况】精装修, 即住,省心省力。 【产权信息】70年产权,商品房住宅,满五 ,交易税费低。 【价格与位置】39.8万,位于成熟社区,周边设施齐全,生活便利。 【推荐理由】房屋保养好,基础设施完善,适合家庭居住,享受现活。
-
业主心态问经纪人
业主因工作调动及资金周转需求,诚意出售此房。我与业主保持良好关系,房主对我充满信任,积极配合看房,有议价空间,手续齐全。业主急售,欢迎有意者咨询洽谈!
-
小区配套问经纪人
周边配套齐全,设施完备,物业管理完善,保安24 班,住户素质高,社区主流健康向上,邻里关系和谐。
-
服务介绍问经纪人
欢迎光临我们的房产服务,我将为您提供一站式购房体验。首先,我们将提供装修咨询和协助办理手续,确保您的购房流程顺畅无阻。其次,我会根据您的需求,带看 ,并亲自接送,让您轻松找到满意家。我的房源信息真实可
-
税费分析房贷计算
该房产证件齐全,房东住房,产证和契税票满五年,6月30日前,缴纳的契税,过户后可全额退还。
-
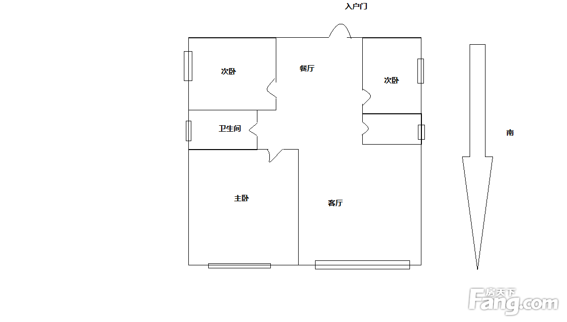
户型解读问经纪人
正规三居,南北通透,视野开阔,高层位置,楼层好。室内设计合理,餐厅客厅可分离,朝向良好,实拍视频和全景展现,空气流通,居住舒适度高。
周边配套
本月均价 3880元/m²
环比上月 上涨 0.02%
同比去年 持平 持平
-
3937元/㎡
本月挂牌均价
-
持平
环比上月
- 免费咨询
- 专业服务
- 区域解读
- 户型分析


