2高品质纯改善社区,居住人群纯粹,精装有品质 城心地理位置
-
520万
总价
-
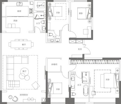
4室2厅3卫
户型
-
256.13㎡
建筑面积
买房加房产交流群,省钱不踩雷
3000+人正在热聊
-
单价
20302元/平米
- 挂牌价格解析
-
楼层
中层/6层
- 咨询楼层
-
套内
暂无数据
- 咨询套内使用面积
-
楼型
板楼
-
朝向
南北
-
装修
简装修
-
发布
2026-02-03
-
地铁
距4号线航天大道站约435米
-
咨询总首付
首付约157万
首付税费及佣金情况 -
深度测评
小区碧桂园云顶(曲江新区-金泘沱)
-
更多
楼户比、楼层高度、交易历史、抵押信息
房源描述(1)
-
核心卖点问经纪人
本房源位于曲江新区核心地段芙蓉西路东侧,紧邻地铁4号线金泘沱站,出行便捷。小区环境优越,物业品质有保障。房屋为南北朝向的4室2厅3卫1厨1阳台户型,建筑面积达256.13平米,空间宽敞舒适。 该房源位于6层建筑的中层位置,采光通风俱佳。简装修状态便于买家按个人喜好进行改造。房本已满两年,交易税费较低。总价520万,单价仅20302元/平米,性价比突出,是改善型家庭的优质选择。
-
小区配套问经纪人
适宜人群: 户型宜居,适合三代同堂的一生之宅。三间卧室和客厅均朝南,餐厨功能区视野好,且利于家庭互动。该房源楼层舒适,老人孩子均适合。 周边配套: 都市繁华生活圈公园:曲江文化运动衣、电竞文化公园、世子公园明秦宣王墓遗址公园,购物:金辉环球、星座广场、永辉、盒马教育:航天三中、航天六小交通:地铁4号线 装修描述: 户型宜居,适合三代同堂的一生之宅。三间卧室和客厅均朝南,餐厨功能区视野好,且利于家庭互动。该房源楼层舒适,老人孩子均适合。 交通出行: 地铁4号线直接串联高铁北客站和咸阳机场; 绕城可以选择雁塔立交或者曲江立交; 南三环、航天大道等城市主干道
-
服务介绍问经纪人
本人从业多年,专业能力过硬,服务细节到位,沟通能力强、需求理解透彻、谈判技巧娴熟、最终帮我们争取到理想的价位。希望在未来的日子里为您服务(同号)
周边配套
交通综合评分
查看全部超过西安95.6%的小区
-
地铁公交
10.0
-
驾车出行
10.0
本月均价 20854元/m²
环比上月 下跌 1.92%
同比去年 下跌 18.37%
猜你喜欢
同小区其它房源
户型齐全,主打全明格局,户型方正四居
碧桂园云顶户型主要有190平-248平的全明格局,户型方正的四居 、143平-143平的全明格局,户型方正,动静分离的三居 。
*获取完整户型报告,同时会有免费语音讲解服务
买房加房产交流群,省钱不踩雷
3000+人正在热聊
- 免费咨询
- 专业服务
- 区域解读
- 户型分析


