东亭地铁口 沙湖公园旁 大四房 产证五年 自住装修
-
240万
总价
-
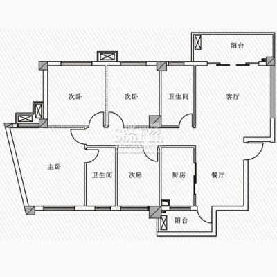
4室2厅
户型
-
147.94㎡
建筑面积
买房加房产交流群,省钱不踩雷
3000+人正在热聊
加入群聊
-
单价
16223元/平米
- 挂牌价格解析
-
楼层
高楼层/15层
- 咨询楼层
-
套内
暂无数据
- 咨询套内使用面积
-
楼型
板楼
-
朝向
南北
-
装修
其他
-
供暖
集中供暖
-
发布
2023-09-30
-
地铁
距4号线东亭站约238米
-
咨询总首付
首付约72.7万
首付税费及佣金情况 -
深度测评
小区世纪彩城(武昌-东湖东亭)
-
更多
楼户比、楼层高度、交易历史、抵押信息
周边配套
地址:武昌中北路233号
交通综合评分
查看全部4.0
“一般”
超过武汉35.5%的小区
-
地铁公交
10.0
本月均价 15023元/m²
环比上月 下跌 3.59%
同比去年 下跌 16.63%
猜你喜欢
同小区其它房源
户型齐全,主打户型方正,明卫,双阳台三居
世纪彩城户型主要有106平-143平的户型方正,明卫,双阳台的三居 、60平-93平的户型方正,明厨,明卫,客厅朝南,双阳台的二居 、140平-148平的户型方正,明卫,明厨,客厅朝南,全明格局的四居 。
*获取完整户型报告,同时会有免费语音讲解服务
买房加房产交流群,省钱不踩雷
3000+人正在热聊
加入群聊
免责声明:房源信息由网站用户提供,其真实性、合法性由信息提供者负责,最终以政府部门登记备案为准。本网站不声明或保证内容之正确性和可靠性,购买该房屋时,请谨慎核查。入学情况仅凭历史经验总结,在此不承诺升学事宜。请您在签订合同之前,切勿支付任何形式的费用,以免上当受骗。



