南湖地铁叠拼特惠!3字头享花园+露台+车位
-
368万
总价
-
5室2厅
户型
-
200.6㎡
建筑面积
买房加房产交流群,省钱不踩雷
3000+人正在热聊
-
单价
18345元/平米
- 挂牌价格解析
-
楼层
低楼层/4层
- 咨询楼层
-
套内
暂无数据
- 咨询套内使用面积
-
楼型
板楼
-
朝向
南
-
装修
简装
-
供暖
自供暖
-
发布
2025-01-09
-
地铁
距8号线省农科院站约394米
-
咨询总首付
首付约107.7万
首付税费及佣金情况 -
深度测评
小区保利心语(洪山-新南湖)
-
更多
楼户比、楼层高度、交易历史、抵押信息
房源描述(1)
-
核心卖点问经纪人
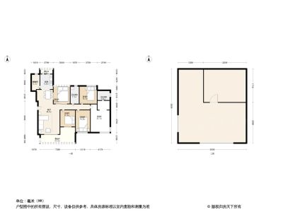
核心卖点 南向大花园 空间大全明 价格好说 无西晒不临街 小区介绍 保利心语是保利地产(地产综合实力5强)在武汉市场继保利花园、保利十二橡树庄园后开发的又一力作。项目占地42万方,自然景观资源丰富,与5200余亩野芷湖相连,拥有近千米湖岸线,东望狮子山,大专院校、科研院所林立,具有浓郁的人文氛围。 户型介绍 房子是联排别墅,100多平的前后院子,上下四层,露台已经现浇,产证面积194.73平,,三楼房顶房东重新加高了,有三米六净层高。 交通出行 7.8号线 公交:乘777、320至野芷湖保利心语下车,步行500米可到10期。乘777、570至南湖大道马湖站下车。 2综合商场:群光广场、亚贸广场、中南广场、中百仓储、中商平价 3.医院:武汉陆军总医院,省人民医院,武汉妇幼保健院
-
业主心态问经纪人
房东置换,诚心出售,可以再谈,欢迎看房,随时恭候。
-
小区配套问经纪人
小区地理位置佳,绿化环境优越整洁,居民素质高,物业管理完善,适宜居住
-
服务介绍问经纪人
本人做房产多年,一直本着专业的房产知识,为您服务,我会在短的时间内帮您买好满意的房子,不让您错失任何好房子,更不让您每天为买房的事烦心,欢迎随时拨打我电话。
-
税费分析房贷计算
关于本房的税费信息情况,请电话联系我,我将详细的为您讲解!
-
户型解读问经纪人
房屋拥有相对宽松的尺寸,布局通透,动静分离,设计豪华
周边配套
交通综合评分
查看全部超过武汉95.2%的小区
-
地铁公交
10.0
-
城际交通
4.0
本月均价 12781元/m²
环比上月 下跌 0.27%
同比去年 下跌 15.07%
猜你喜欢
同小区其它房源
户型齐全,主打独立衣帽间,明卫,明厨,双阳台三居
保利心语户型主要有78平-140平的独立衣帽间,明卫,明厨,双阳台的三居 、63平-125平的明厨,明卫,主卧朝南的二居 、116平-201平的明卫,客厅朝南,双卧朝南的四居 。
*获取完整户型报告,同时会有免费语音讲解服务
-
14089元/㎡
本月挂牌均价
-
1.85%
环比上月
买房加房产交流群,省钱不踩雷
3000+人正在热聊
- 免费咨询
- 专业服务
- 区域解读
- 户型分析


