昌大开发泰和上筑类独栋独立电梯入户
-
605万
总价
-
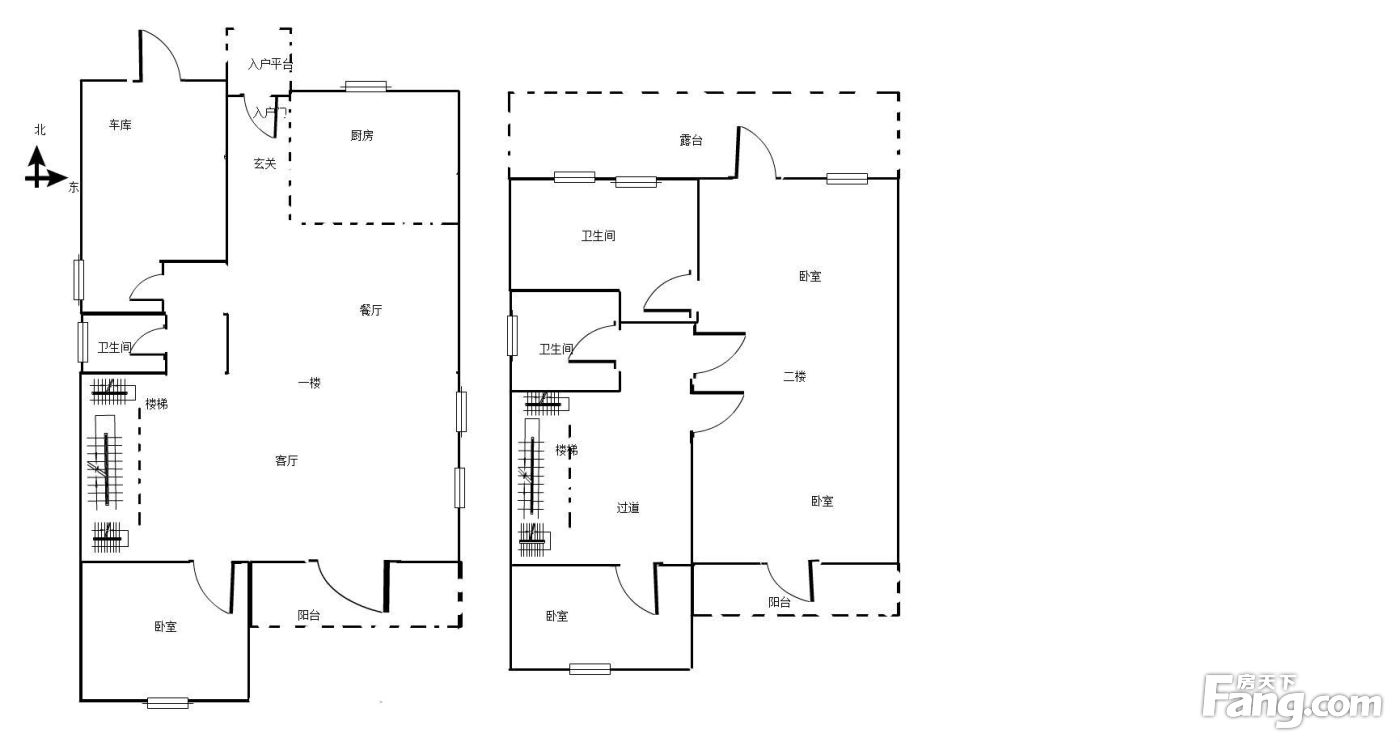
6室3厅
户型
-
293.02㎡
建筑面积
-
单价
20648元/平米
- 挂牌价格解析
-
楼层
低楼层/3层
- 咨询楼层
-
套内
暂无数据
- 咨询套内使用面积
-
楼型
板楼
-
朝向
南北
-
装修
毛坯
-
供暖
集中供暖
-
发布
2025-12-12
-
地铁
暂无数据
-
深度测评
小区泰和上筑(高新-潍坊一中)
-
更多
楼户比、楼层高度、交易历史、抵押信息
房源描述(1)
-
核心卖点问经纪人
高新核心位置泰和上筑别墅区
-
业主心态问经纪人
业主诚意出售,对自己的房子很爱惜也很不舍,所以希望找到诚心诚意的客户,想看房子可以给我打电话!
-
小区配套问经纪人
位置:小区地理位置,绿化,居民素质高 配套:有健身器材,小型篮球场,可供小区居民使用 车位:停车位充足,建有地上停车场和地下车库 保安:小区内24保安巡逻
-
服务介绍问经纪人
足不出户,带您了解周边楼市信息! 本人从事房产行业多年,了解市场房源具体信息,深知买房的艰辛和不易,会为您匹配合适的房源,为您买上满意的房子 欢迎各位随时咨询,一定会尽心尽力,全心全意为您服务。
-
税费分析房贷计算
关于税费方面会严格按照国家标准,及相关政策规定收取,保证每一位客户的合法利益不受侵犯,如有疑问可随时咨询! 新房不收中介费!!! 新房不收中介费!!! 新房不收中介费!!!
-
户型解读问经纪人
小区总体户型都是比较不错的!光线非常好,南北通透,卧室朝阳,全明户型,抽空可以过来实地看看。
周边配套
交通综合评分
查看全部超过潍坊29.2%的小区
-
地铁公交
10.0
本月均价 10518元/m²
环比上月 下跌 0.59%
同比去年 下跌 2.67%
猜你喜欢
同小区其它房源
-
8363元/㎡
本月挂牌均价
-
持平
环比上月
- 免费咨询
- 专业服务
- 区域解读
- 户型分析


