春景花园东区双卫H户型好楼层全天采光
-
79万
总价
-
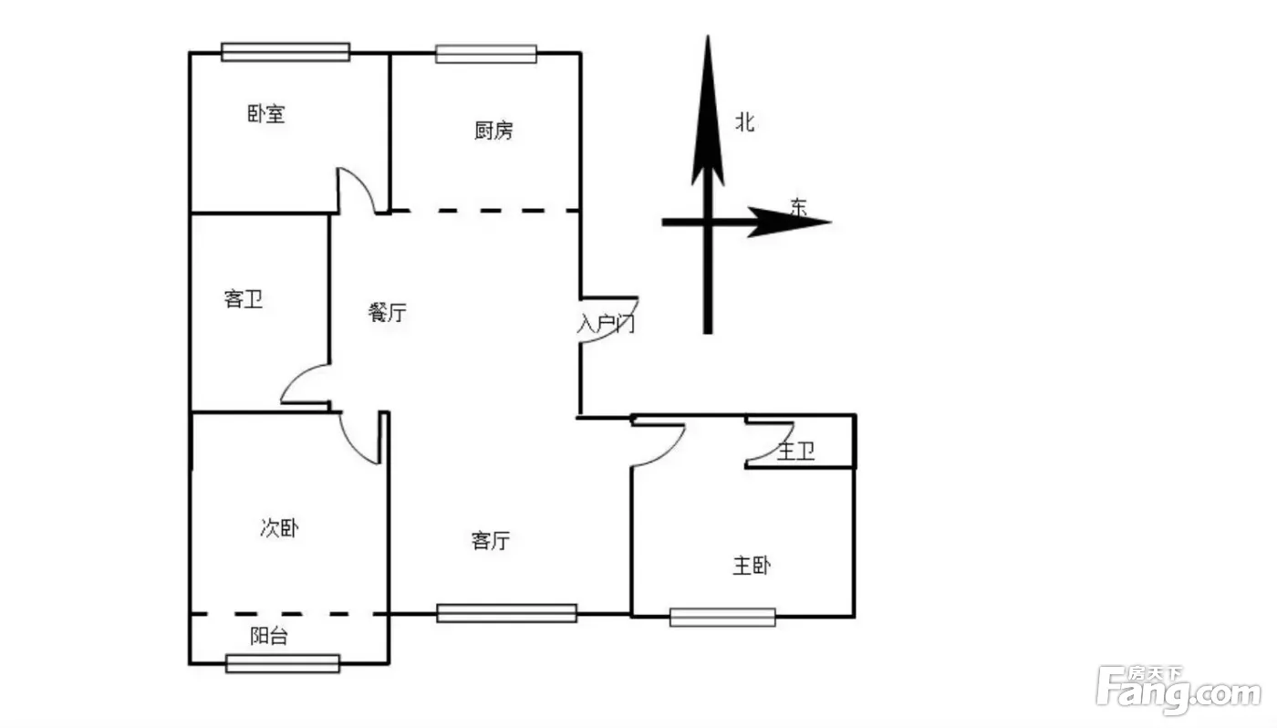
3室2厅
户型
-
129.8㎡
建筑面积
-
单价
6087元/平米
- 挂牌价格解析
-
楼层
中楼层/22层
- 咨询楼层
-
套内
暂无数据
- 咨询套内使用面积
-
楼型
板塔结合
-
朝向
南北
-
装修
简装
-
供暖
集中供暖
-
发布
2025-12-08
-
地铁
暂无数据
-
深度测评
小区春景花园(高新-潍坊一中)
-
更多
楼户比、楼层高度、交易历史、抵押信息
房源描述(1)
-
核心卖点问经纪人
相信为您推荐的这套房子您一定会满意,赶快行动吧,先到先得! 房屋年代∶2021,面积∶130.0平方米,朝向∶南北 1. 小区配备高端物业管理,让你享受宾至如归的服务; 2. 小区人文素质高,是您的居家的绝佳选择; 3. 小区居住安静舒适,让您拥有高品质的生活环境; 4. 小区绿化率高,绿树成荫鸟语花香让您随时呼吸到新鲜空气。
周边配套
交通综合评分
查看全部超过潍坊92.7%的小区
-
地铁公交
10.0
-
驾车出行
9.0
本月均价 6450元/m²
环比上月 上涨 0.39%
同比去年 下跌 8.85%
猜你喜欢
同小区其它房源
户型齐全,主打南北通透,主卧朝南三居
春景花园户型主要有96平-230平的南北通透,主卧朝南的三居 、81平-108平的南北通透,客厅朝南,卧室带阳台的二居 、150平-188平的南北通透,卧室朝南的四居 。
*获取完整户型报告,同时会有免费语音讲解服务
-
8363元/㎡
本月挂牌均价
-
持平
环比上月
- 免费咨询
- 专业服务
- 区域解读
- 户型分析

