楼栋位置好,看房方便,产权清晰,业主诚意出售
-
16万
总价
-
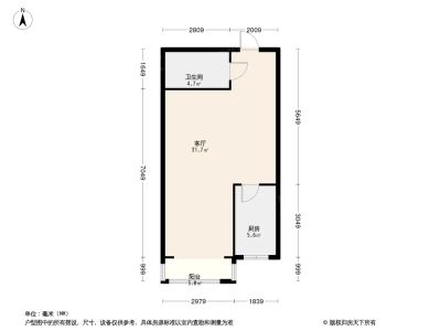
1室1厅
户型
-
35㎡
建筑面积
-
单价
4572元/平米
- 挂牌价格解析
-
楼层
高楼层/16层
- 咨询楼层
-
套内
暂无数据
- 咨询套内使用面积
-
楼型
板楼
-
朝向
北
-
装修
精装
-
供暖
自供暖
-
发布
2024-03-03
-
地铁
暂无数据
-
深度测评
小区润地凤凰城(高新-东明中学)
-
更多
楼户比、楼层高度、交易历史、抵押信息
周边配套
地址:东方路1177号(东方路与卧龙街交汇处西南角)
交通综合评分
查看全部6.7
“较好”
超过潍坊41.6%的小区
-
地铁公交
10.0
-
驾车出行
9.0
本月均价 5780元/m²
环比上月 下跌 0.51%
同比去年 下跌 11.13%
猜你喜欢
同小区其它房源
户型齐全,主打户型方正,明卫,明厨,客厅朝南,全明格局二居
润地凤凰城户型主要有55平-97平的户型方正,明卫,明厨,客厅朝南,全明格局的二居 、92平-199平的户型方正,明卫,明厨,客厅朝南的三居 、36平-56平的户型方正,明厨的一居 。
*获取完整户型报告,同时会有免费语音讲解服务
-
7192元/㎡
本月挂牌均价
-
持平
环比上月
免责声明:房源信息由网站用户提供,其真实性、合法性由信息提供者负责,最终以政府部门登记备案为准。本网站不声明或保证内容之正确性和可靠性,购买该房屋时,请谨慎核查。入学情况仅凭历史经验总结,在此不承诺升学事宜。请您在签订合同之前,切勿支付任何形式的费用,以免上当受骗。



