满五 电梯房 2室1厅 精装修 采光好 周边商圈成熟 急售
-
26万
总价
-
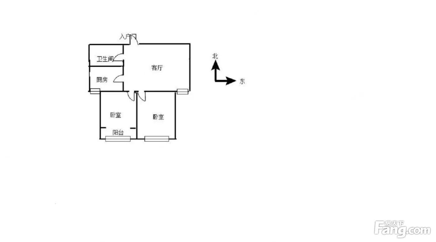
2室1厅1卫
户型
-
73㎡
建筑面积
-
单价
3562元/平米
- 挂牌价格解析
-
楼层
中层/11层
- 咨询楼层
-
套内
暂无数据
- 咨询套内使用面积
-
楼型
板楼
-
朝向
南
-
装修
精装修
-
年代
2011
-
发布
2025-10-10
-
地铁
暂无数据
-
深度测评
小区恒信永祥苑(潍城-新纪元)
-
更多
楼户比、楼层高度、交易历史、抵押信息
房源描述(1)
-
核心卖点问经纪人
核心卖点 .
-
业主心态问经纪人
业主很信任我,我能了解业主卖房新的动态。目前市场交易量平稳,政策已经基本稳定,是市场触底入手的好时候。请不要错过性价比高的好房。
-
小区配套问经纪人
小区地理位置佳,绿化率高,环境整洁,居民素质高。 .
-
服务介绍问经纪人
本人从事房产多年,我会根据您的需求为您量身找房! 实力三大服务: 1、 快速定位服务(指定买哪里,我来帮您找) 2、 快速量身找房(需求您来说,剩下交给我) 3、 快速房源估价(心里有房源,我给您建议
-
税费分析房贷计算
关于本房税费分析详情,请电话联系我,我将提供详细的税费情况。 .
-
交通出行问经纪人
公交:环61路、88路(玉清街永安路口)、57路/k57路、67路(河湾)
周边配套
交通综合评分
查看全部超过潍坊72.3%的小区
-
地铁公交
10.0
-
城际交通
4.0
本月均价 5089元/m²
环比上月 下跌 0.21%
同比去年 下跌 11.24%
猜你喜欢
同小区其它房源
户型齐全,主打户型方正,明卫,明厨三居
恒信永祥苑户型主要有80平-115平的户型方正,明卫,明厨的三居 、71平-92平的户型方正,明厨,明卫,客厅朝南的二居 。
*获取完整户型报告,同时会有免费语音讲解服务
-
5423元/㎡
本月挂牌均价
-
持平
环比上月
- 免费咨询
- 专业服务
- 区域解读
- 户型分析

