泰和上筑精装独栋别墅 三面环院大院子带车库 多套精装独栋
-
890万
总价
-
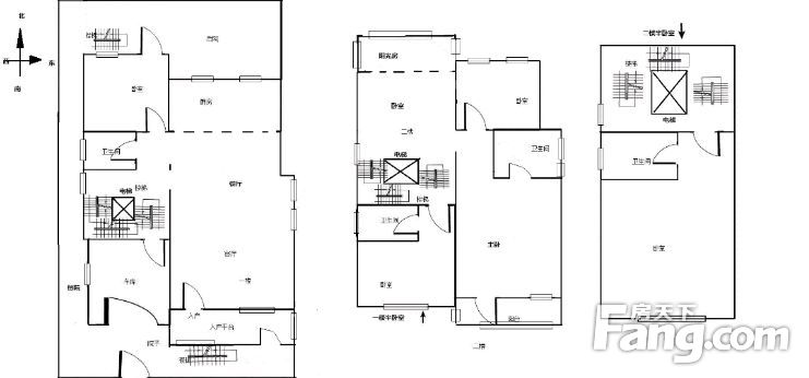
6室2厅4卫
户型
-
347㎡
建筑面积
-
单价
25648元/平米
- 挂牌价格解析
-
楼层
3层
- 咨询楼层
-
套内
暂无数据
- 咨询套内使用面积
-
楼型
独栋
-
朝向
南
-
装修
豪华装修
-
发布
2025-09-18
-
地铁
暂无数据
-
深度测评
小区泰和上筑别墅(高新-潍坊一中)
-
更多
楼户比、楼层高度、交易历史、抵押信息
房源描述(1)
-
核心卖点问经纪人
高新核心位置 近翰声 吾悦广场 交通便利 是潍坊市为数不多的纯别墅区,高品质纯别墅区
-
业主心态问经纪人
房子是精装的都是好材料 防主也很舍不得 现在忍痛转让,希望有缘人入住.
-
小区配套问经纪人
小区位于高新区核心位置,潍坊为数不多的纯别墅区,小区环境优美 七十年产权 系统VR是一个户型的
-
服务介绍问经纪人
本人从事房地产多年,大量好房源,欢迎进入我的店铺查看,欢迎随时电话咨询,相信我的专业,为您置业 安家保驾护航。
-
税费分析房贷计算
关于税费方面会严格按照国家标准,及相关政策规定收取,保证每一位客户的合法利益不受侵犯,如有疑问可随时咨询! 新房不收中介费!!!
-
户型解读问经纪人
小区总体户型都是比较不错的!光线非常好,南北通透,卧室朝阳,全明户型,抽空可以过来实地看看 随时打电话联系
周边配套
地址:宝通街与潍县中路交叉口(宝通街以北、潍县中路以东)
交通综合评分
查看全部4.0
“一般”
超过潍坊29.2%的小区
-
地铁公交
10.0
-
8363元/㎡
本月挂牌均价
-
持平
环比上月
- 免费咨询
- 专业服务
- 区域解读
- 户型分析
免责声明:房源信息由网站用户提供,其真实性、合法性由信息提供者负责,最终以政府部门登记备案为准。本网站不声明或保证内容之正确性和可靠性,购买该房屋时,请谨慎核查。入学情况仅凭历史经验总结,在此不承诺升学事宜。请您在签订合同之前,切勿支付任何形式的费用,以免上当受骗。


