智群学朐房南北通透3室2厅精装未住低首付拎包入住价格可议急售
-
50万
总价
-
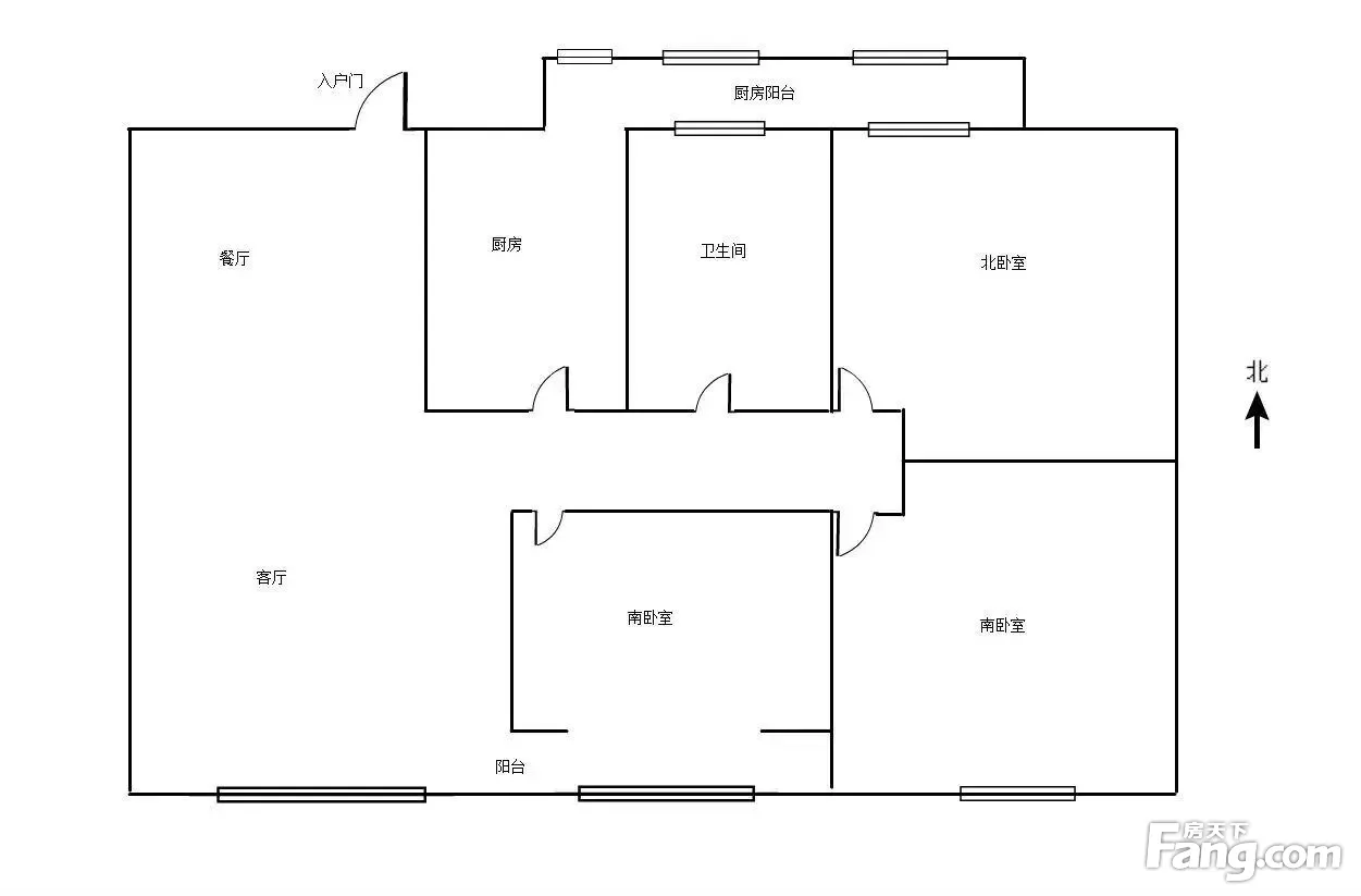
3室2厅1卫
户型
-
128㎡
建筑面积
-
单价
3906元/平米
- 挂牌价格解析
-
楼层
低层/18层
- 咨询楼层
-
套内
暂无数据
- 咨询套内使用面积
-
楼型
板楼
-
朝向
南北
-
装修
精装修
-
年代
2014
-
发布
2025-07-18
-
深度测评
小区唐宁郡(潍城-奥体中心)
-
更多
楼户比、楼层高度、交易历史、抵押信息
房源描述(1)
-
核心卖点问经纪人
相信为您推荐的这套房子您一定会满意,赶快行动吧,先到先得! 房屋年代∶2014,面积∶128.0平方米,朝向∶南北 1. 小区配备高端物业管理,让你享受宾至如归的服务; 2. 小区人文素质高,是您的居家的绝佳选择; 3. 小区居住安静舒适,让您拥有高品质的生活环境; 4. 小区绿化率高,绿树成荫鸟语花香让您随时呼吸到新鲜空气。
-
业主心态问经纪人
房东置换,诚心出售,欢迎看房,随时恭候您的电话。
-
小区配套问经纪人
位置:小区地理位置,绿化,居民素质高 配套:有健身器材,小型篮球场,可供小区居民使用 车位:停车位充足,建有地上停车场和地下车库 保安:小区内24保安巡逻
-
服务介绍问经纪人
本人从事房地产多年,公司有大量好房源,欢迎进入我的店铺查看,欢迎随时电话咨询,相信我的专业,为您置业安家保驾护航。
-
税费分析房贷计算
房税费首套房契税1至3个点。 物业费2元到3元一平方。 购买新房主要税费: 契税:90平以内:1% ;90-124 平收1.5%;124平以上收2%(交房后地税收取) 注:以上收费仅供参考
周边配套
交通综合评分
查看全部超过潍坊28.5%的小区
-
地铁公交
10.0
-
驾车出行
8.0
本月均价 5189元/m²
环比上月 下跌 0.73%
同比去年 下跌 8.44%
猜你喜欢
同小区其它房源
-
5579元/㎡
本月挂牌均价
-
持平
环比上月
- 免费咨询
- 专业服务
- 区域解读
- 户型分析

