智谷 满二 高楼层视野无遮挡 双卫格局 正规商品房
-
78万
总价
-
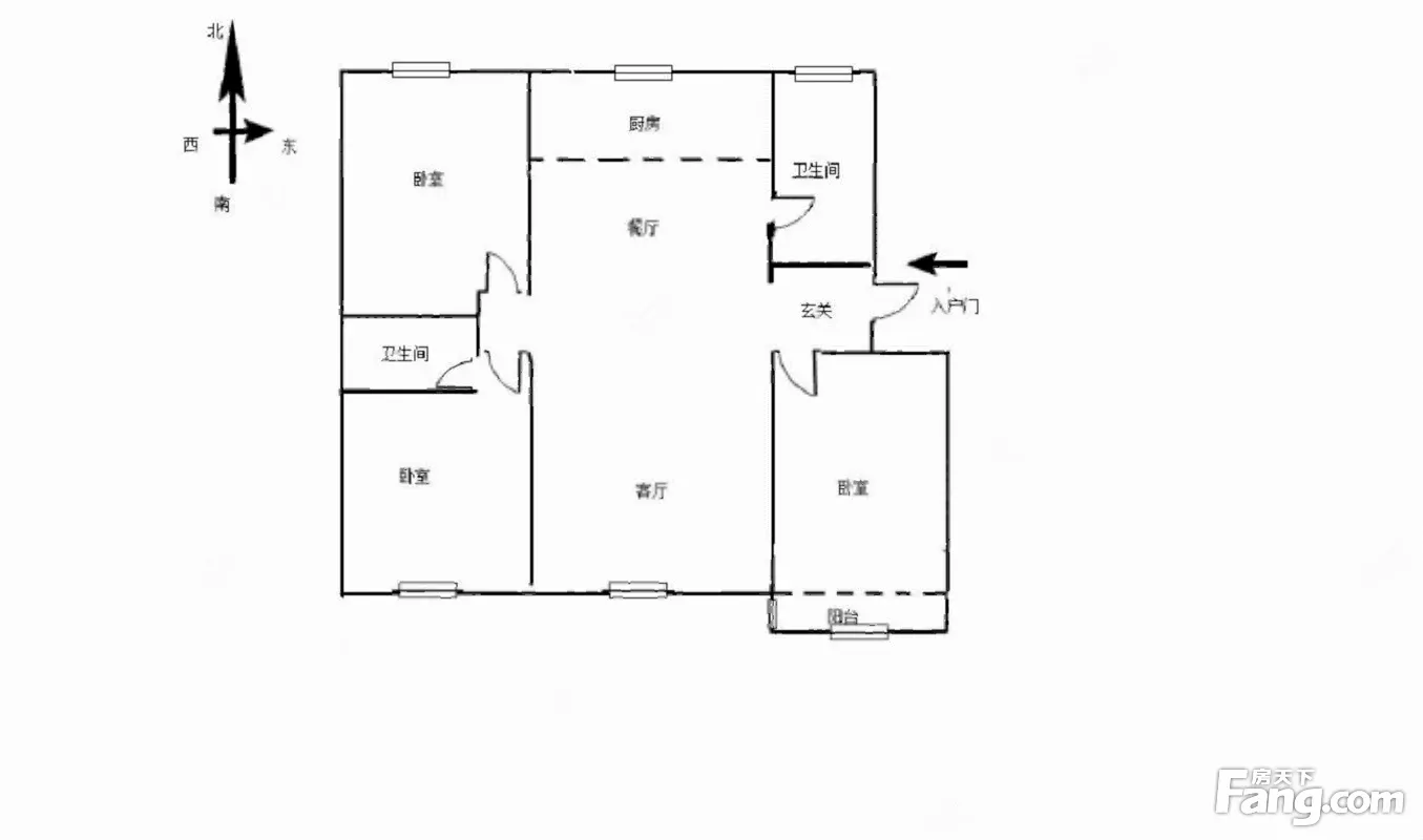
3室2厅2卫
户型
-
139㎡
建筑面积
-
单价
5612元/平米
- 挂牌价格解析
-
楼层
顶层/6层
- 咨询楼层
-
套内
暂无数据
- 咨询套内使用面积
-
楼型
板楼
-
朝向
南北
-
装修
精装修
-
年代
2013
-
发布
2025-06-04
-
深度测评
小区春景花园(高新-潍坊一中)
-
更多
楼户比、楼层高度、交易历史、抵押信息
房源描述(1)
-
核心卖点问经纪人
相信为您推荐的这套房子您一定会满意,赶快行动吧,先到先得! 房屋年代:2013年,朝向:南北,空间利用率高 小区简介: 1. 小区物业管理严格,服务到家让你生活放心 2. 小区人文素质高 3. 小区居住安静舒适,让您居住并享受品质生活中的 4. 小区绿化率高达,绿树成荫鸟语花香让您随时呼吸到新鲜空气
-
业主心态问经纪人
业主很信任我,我能了解业主卖房新的动态。目前市场交易量平稳,政策已经基本稳定,是 入手的好时候。请不要错过性价比高的好房。
-
小区配套问经纪人
位置:小区地理位置佳,绿化率高,居民素质高 配套:有健身器材,小型篮球场,可供小区居民使用 车位:停车位充足,建有地上停车场和地下车库 保安:小区内24保安巡逻
-
服务介绍问经纪人
本人从事房地产多年,公司有大量好房源,欢迎进入我的店铺查看,欢迎随时电话咨询,相信我的专业,为您置业安家保驾护航。
周边配套
交通综合评分
查看全部超过潍坊92.7%的小区
-
地铁公交
10.0
-
驾车出行
9.0
本月均价 6450元/m²
环比上月 上涨 0.39%
同比去年 下跌 8.85%
猜你喜欢
同小区其它房源
户型齐全,主打南北通透,主卧朝南三居
春景花园户型主要有96平-230平的南北通透,主卧朝南的三居 、81平-108平的南北通透,客厅朝南,卧室带阳台的二居 、150平-188平的南北通透,卧室朝南的四居 。
*获取完整户型报告,同时会有免费语音讲解服务
-
8363元/㎡
本月挂牌均价
-
持平
环比上月
- 免费咨询
- 专业服务
- 区域解读
- 户型分析


