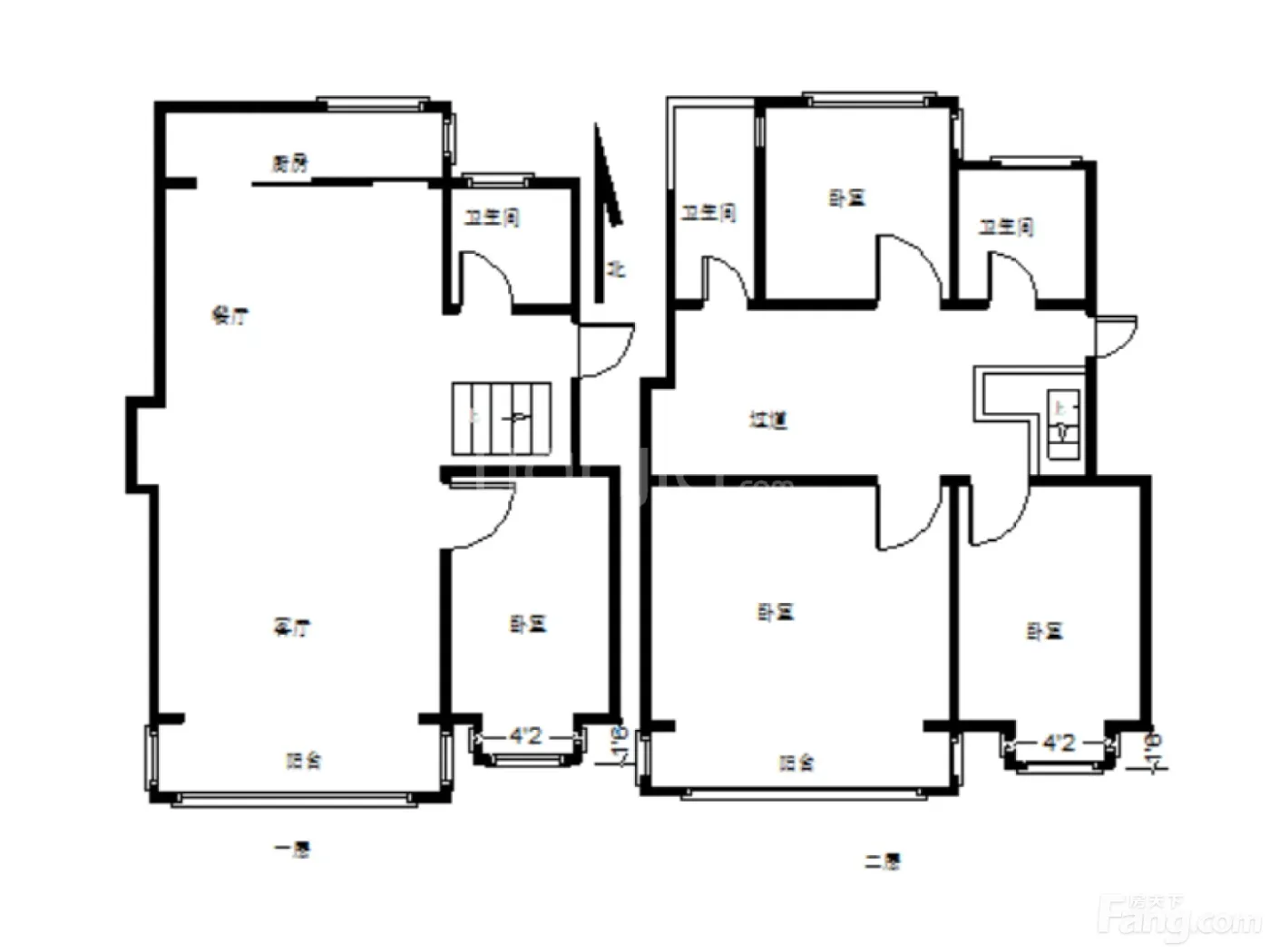
尧王山花园 5室3厅2卫 1-2楼复式 带院子储藏,独立车库
-
166万元
总价
-
5室3厅2卫
户型
-
249.95㎡
建筑面积
-
单价
6641元/平米
- 挂牌价格解析
-
楼层
底层/6层
- 咨询楼层
-
套内
暂无数据
- 咨询套内使用面积
-
朝向
南
-
年代
2018
-
发布
2025-06-05
-
深度测评
小区尧王山花园(青州-青州)
-
更多
楼户比、楼层高度、交易历史、抵押信息
业主自评
-
soufun-s86433
加入房天下4289天
接电时间:11:00-22:00
一二楼复式,带院子、带储藏室,独立车库,房东直卖
一二楼复式,带院子、带储藏室,独立车库,房东直卖
周边配套
地址:仰天山路与尧王山路交叉口往西800米路北尧王山花园
本月均价 5086元/m²
环比上月 下跌 1.71%
同比去年 下跌 9.11%
猜你喜欢
同小区其它房源
-
5408元/㎡
本月挂牌均价
-
持平
环比上月
联系业主
免责声明:房源信息由网站用户提供,其真实性、合法性由信息提供者负责,最终以政府部门登记备案为准。本网站不声明或保证内容之正确性和可靠性,购买该房屋时,请谨慎核查。入学情况仅凭历史经验总结,在此不承诺升学事宜。请您在签订合同之前,切勿支付任何形式的费用,以免上当受骗。

