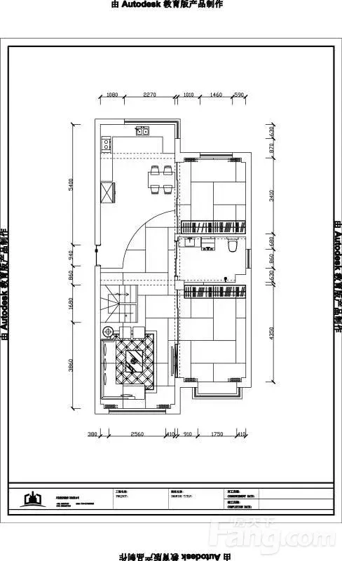
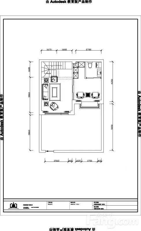
清河 清河新城帝景苑 3室2厅 132.50㎡ 66万
-
66万元
总价
-
3室2厅2卫
户型
-
132.5㎡
建筑面积
-
单价
4981元/平米
- 挂牌价格解析
-
楼层
底层/2层
- 咨询楼层
-
套内
暂无数据
- 咨询套内使用面积
-
朝向
南北
-
年代
2015
-
发布
2026-03-01
-
深度测评
小区清河新城帝景苑(清河-清河)
-
更多
楼户比、楼层高度、交易历史、抵押信息
业主自评
-
潇潇雨歇621
加入房天下86天
接电时间:0:00-24:00
周边配套
地址:朝阳街
联系业主
免责声明:房源信息由网站用户提供,其真实性、合法性由信息提供者负责,最终以政府部门登记备案为准。本网站不声明或保证内容之正确性和可靠性,购买该房屋时,请谨慎核查。入学情况仅凭历史经验总结,在此不承诺升学事宜。请您在签订合同之前,切勿支付任何形式的费用,以免上当受骗。

