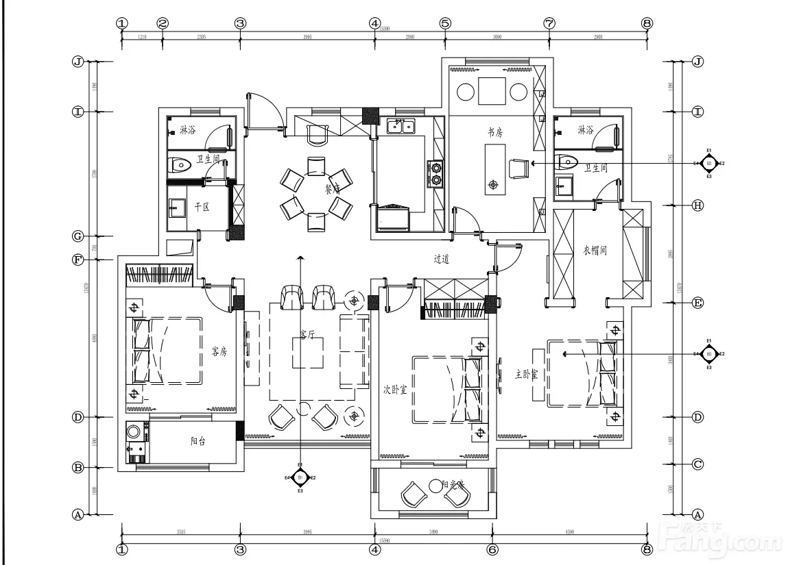
高港 天然居 4室2厅2卫
-
450万元
总价
-
4室2厅2卫
户型
-
162.17㎡
建筑面积
-
单价
27749元/平米
- 挂牌价格解析
-
楼层
中层/5层
- 咨询楼层
-
套内
暂无数据
- 咨询套内使用面积
-
朝向
南
-
发布
2024-08-17
-
深度测评
小区天然居(高港-高港区)
-
更多
楼户比、楼层高度、交易历史、抵押信息
业主自评
-
soufunip911942
加入房天下3547天
接电时间:09:00-22:00
高港 天然居 4室2厅2卫,电梯洋房,带产权车位
高港 天然居 4室2厅2卫,电梯洋房,带产权车位
周边配套
地址:泰州市高港区创新大道
交通综合评分
查看全部7.0
“较好”
超过泰州30.3%的小区
-
地铁公交
10.0
-
驾车出行
10.0
本月均价 5000元/m²
环比上月 下跌 0.3%
同比去年 下跌 42.94%
-
8210元/㎡
本月挂牌均价
-
3.16%
环比上月
联系业主
免责声明:房源信息由网站用户提供,其真实性、合法性由信息提供者负责,最终以政府部门登记备案为准。本网站不声明或保证内容之正确性和可靠性,购买该房屋时,请谨慎核查。入学情况仅凭历史经验总结,在此不承诺升学事宜。请您在签订合同之前,切勿支付任何形式的费用,以免上当受骗。

