田苑小区南北通透四房,业主诚卖,找我价钱有惊喜!
-
700万
总价
-
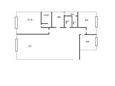
4室2厅2卫
户型
-
124.8㎡
建筑面积
-
单价
54487元/平米
- 挂牌价格解析
-
楼层
低楼层/7层
- 咨询楼层
-
套内
暂无数据
- 咨询套内使用面积
-
朝向
通南北
-
装修
简装
-
年代
1987
-
发布
2026-03-04
-
地铁
距7号线洪湖站约244米
-
咨询总首付
首付约410.5万
首付税费及佣金情况 -
深度测评
小区田苑小区(罗湖-翠竹)
-
更多
楼户比、楼层高度、交易历史、抵押信息
周边配套
地址:田贝三路88号
交通综合评分
查看全部8.2
“较好”
超过深圳25.8%的小区
-
地铁公交
10.0
-
驾车出行
10.0
-
城际交通
4.0
本月均价 56084元/m²
环比上月 上涨 1.01%
同比去年 下跌 4.41%
猜你喜欢
同小区其它房源
户型齐全,主打户型方正,明厨,客厅朝南三居
田苑小区户型主要有74平-102平的户型方正,明厨,客厅朝南的三居 、69平-89平的户型方正,明卫,明厨,主卧朝南的二居 。
*获取完整户型报告,同时会有免费语音讲解服务
-
57808元/㎡
本月挂牌均价
-
0.54%
环比上月
免责声明:房源信息由网站用户提供,其真实性、合法性由信息提供者负责,最终以政府部门登记备案为准。本网站不声明或保证内容之正确性和可靠性,购买该房屋时,请谨慎核查。入学情况仅凭历史经验总结,在此不承诺升学事宜。请您在签订合同之前,切勿支付任何形式的费用,以免上当受骗。



