满五唯一税费少装修保养好
-
540万
总价
-
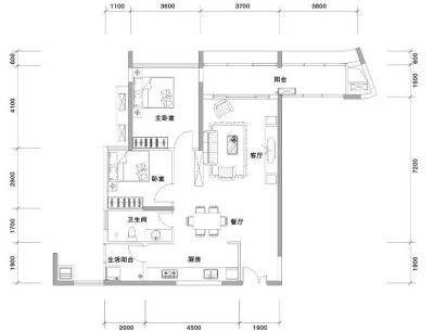
2室2厅
户型
-
107.05㎡
建筑面积
买房加房产交流群,省钱不踩雷
3000+人正在热聊
加入群聊
-
单价
50444元/平米
- 挂牌价格解析
-
楼层
低楼层/50层
- 咨询楼层
-
套内
暂无数据
- 咨询套内使用面积
-
楼型
板塔结合
-
朝向
北
-
装修
精装
-
供暖
暂无数据
-
发布
2025-07-15
-
地铁
距2号线(蛇口线)莲塘口岸站约201米
-
咨询总首付
首付约250.5万
首付税费及佣金情况 -
深度测评
小区兰亭国际公寓(罗湖-莲塘)
-
更多
楼户比、楼层高度、交易历史、抵押信息
周边配套
地址:罗沙路与延芳路交汇处莲塘西岭下村
交通综合评分
查看全部7.9
“较好”
超过深圳52.9%的小区
-
地铁公交
10.0
-
驾车出行
9.0
-
城际交通
4.0
本月均价 48805元/m²
环比上月 下跌 0.65%
同比去年 下跌 0.38%
猜你喜欢
同小区其它房源
户型齐全,主打明卫,明厨,独立衣帽间,双卧朝南三居
兰亭国际公寓户型主要有132平-161平的明卫,明厨,独立衣帽间,双卧朝南的三居 、106平-143平的明卫,双阳台的二居 。
*获取完整户型报告,同时会有免费语音讲解服务
-
51756元/㎡
本月挂牌均价
-
0.68%
环比上月
买房加房产交流群,省钱不踩雷
3000+人正在热聊
加入群聊
免责声明:房源信息由网站用户提供,其真实性、合法性由信息提供者负责,最终以政府部门登记备案为准。本网站不声明或保证内容之正确性和可靠性,购买该房屋时,请谨慎核查。入学情况仅凭历史经验总结,在此不承诺升学事宜。请您在签订合同之前,切勿支付任何形式的费用,以免上当受骗。



