新政优惠,难得一见,低于市场价出售,还有谈价空间。
-
345万
总价
-
3室2厅2卫
户型
-
88.63㎡
建筑面积
买房加房产交流群,省钱不踩雷
3000+人正在热聊
-
单价
38926元/平米
- 挂牌价格解析
-
楼层
中层/42层
- 咨询楼层
-
套内
87.63㎡
- 咨询套内使用面积
-
楼型
板楼
-
朝向
南
-
装修
精装修
-
年代
2021
-
发布
2024-09-05
-
地铁
距13号线罗租站约888米
-
咨询总首付
首付约77.5万
首付税费及佣金情况 -
深度测评
小区宏发悦云花园(宝安-石岩)
-
更多
楼户比、楼层高度、交易历史、抵押信息
-
核验码
249937160012链家
房源描述(1)
-
核心卖点问经纪人
【项目名称】 :宏发悦云花园 【宗地号】 :A712-0642 【占地面积】 :26060.72平 【总建筑面积】 :193949平 【容积率】 :4.8 【绿化率】 :30% 【住宅面积】 :73811平 【面积】 :29538平 【面积】 :3624平 【总】 :42/2层,129.7米 【车位数】 :1478辆 【可售套数】 :803套,套内小于90平727套,占比90.54%(未含回迁房)
-
业主心态问经纪人
"宏发悦云花园"占地26060.72平,总建面193949平。 4栋803套住宅,78-129平米的3-4房,1栋 ,1栋写字楼。临近在建13号线地铁罗租站。 容积率4.5,车位1478个。住宅73811平,29538平,3624平。42/2层,129.7米。 户型为建面约78-128㎡;单价区间约为4.5-5.5万/㎡;总价区间约为359-708万元。
-
小区配套问经纪人
小区地理位置佳,绿化环境优越整洁,居民素质高,物业管理完善,适宜
-
服务介绍问经纪人
本人做房产多年,一直本着专业的房产知识,为您服务,我会在短的时间内帮您买好满意的房子,不让您错失任何好房子,更不让您每天为买房的事烦心,欢迎随时拨打我电话。
-
税费分析房贷计算
关于本房的税费信息情况,请电话联系我,我将详细的为您讲解!
-
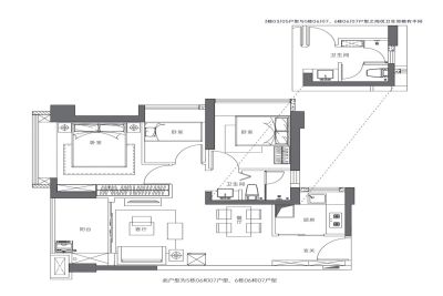
户型解读问经纪人
房屋拥有相对宽松的尺寸,布局通透,动静分离,设计豪华
周边配套
交通综合评分
查看全部超过深圳0.0%的小区
-
地铁公交
8.0
-
驾车出行
10.0
本月均价 50069元/m²
环比上月 上涨 34.04%
同比去年 下跌 1.27%
猜你喜欢
同小区其它房源
户型齐全,主打全明格局,客厅朝南,主卧朝南三居
悦云户型主要有79平-89平的全明格局,客厅朝南,主卧朝南的三居 、128平-128平的南北通透,全明格局,户型方正,动静分离的四居 。
*获取完整户型报告,同时会有免费语音讲解服务
-
30832元/㎡
本月挂牌均价
-
4.08%
环比上月
买房加房产交流群,省钱不踩雷
3000+人正在热聊
- 免费咨询
- 专业服务
- 区域解读
- 户型分析


