东亚·翰林世家温馨两居,37.5平超值实惠
-
20.5万元
总价
-
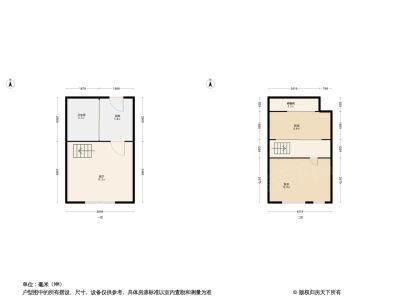
2室1厅1卫
户型
-
37.5㎡
建筑面积
买房加房产交流群,省钱不踩雷
3000+人正在热聊
加入群聊
-
单价
5467元/平米
- 挂牌价格解析
-
楼层
中层/8层
- 咨询楼层
-
套内
暂无数据
- 咨询套内使用面积
-
朝向
北
-
发布
2025-03-16
-
地铁
暂无数据
-
咨询总首付
首付约7.7万
首付税费及佣金情况 -
深度测评
小区东亚·翰林世家(皇姑-长客)
-
更多
楼户比、楼层高度、交易历史、抵押信息
业主自评
-
鸿運当头
加入房天下3783天
接电时间:05:00-22:00
今天,我想和大家分享一下我们家的一套房子,位于东亚·翰林世家。这个小区在陵园街39号,具体位置在银山路与鸭绿江西街的交汇处。我们这个小区以住宅为主,整体环境安静宜居。我们的房子建筑面积是复式每层37.5平方米,虽然不算很大,但布局合理,是2室1厅1卫的格局,非常适合小家庭或者单身贵族居住。房子的朝向是北向,采光和通风都不错,住起来非常舒适。房子的售价是23万元,这个价格在东亚·翰林世家算是相当有吸引力的。对于想要在这里安家的朋友来说,这样的价格和房型是一个不错的选择。小区里的生活设施也很齐全,周边的交通十分便利。选择在这里生活,既能享受便利的生活,又能拥有一个温馨的居所。我真心推荐这套房子,希望它能成为您温暖的家。
今天,我想和大家分享一下我们家的一套房子,位于东亚·翰林世家。这个小区在陵园街39号,具体位置在银山路与鸭绿江西街的交汇处。我们这个小区以住宅为主,整体环境安静宜居。我们的房子建筑面积是复式每层37.5平方米,虽然不算很大,但布局合理,是2室1厅1卫的格局,非常适合小家庭或者单身贵族居住。房子的朝向是北向,采光和通风都不错,住起来非常舒适。房子的售价是23万元,这个价格在东亚·翰林世家算是相当有吸引力的。对于想要在这里安家的朋友来说,这样的价格和房型是一个不错的选择。小区里的生活设施也很齐全,周边的交通十分便利。选择在这里生活,既能享受便利的生活,又能拥有一个温馨的居所。我真心推荐这套房子,希望它能成为您温暖的家。
周边配套
地址:陵园街39号(银山路与鸭绿江西街交汇处)
本月均价 9743元/m²
环比上月 下跌 0.34%
同比去年 下跌 9.42%
猜你喜欢
同小区其它房源
户型齐全,主打户型方正,动静分离二居
东亚·翰林世家户型主要有34平-84平的户型方正,动静分离的二居 、72平-119平的户型方正,动静分离的三居 、34平-58平的户型方正,动静分离的一居 。
*获取完整户型报告,同时会有免费语音讲解服务
-
7395元/㎡
本月挂牌均价
-
0.56%
环比上月
买房加房产交流群,省钱不踩雷
3000+人正在热聊
加入群聊
联系业主
免责声明:房源信息由网站用户提供,其真实性、合法性由信息提供者负责,最终以政府部门登记备案为准。本网站不声明或保证内容之正确性和可靠性,购买该房屋时,请谨慎核查。入学情况仅凭历史经验总结,在此不承诺升学事宜。请您在签订合同之前,切勿支付任何形式的费用,以免上当受骗。

