日月潭低总价两房,地段好房子质量好带大露台
-
86万
总价
-
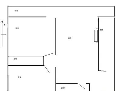
2室2厅
户型
-
77.06㎡
建筑面积
-
单价
11161元/平米
- 挂牌价格解析
-
楼层
中楼层/4层
- 咨询楼层
-
套内
暂无数据
- 咨询套内使用面积
-
楼型
板楼
-
朝向
南
-
装修
其他
-
供暖
暂无数据
-
发布
2025-11-03
-
地铁
暂无数据
-
深度测评
小区日月潭花园(柯桥-柯桥街道)
-
更多
楼户比、楼层高度、交易历史、抵押信息
周边配套
地址:鉴湖路1042号
交通综合评分
查看全部4.0
“一般”
超过绍兴42.4%的小区
-
地铁公交
10.0
本月均价 14140元/m²
环比上月 下跌 2%
同比去年 下跌 22.29%
猜你喜欢
同小区其它房源
户型齐全,主打明厨,明卫,客厅朝南,全明格局,双阳台二居
日月潭花园户型主要有88平-88平的明厨,明卫,客厅朝南,全明格局,双阳台的二居 、101平-157平的户型方正,明厨,明卫,主卧朝南的三居 、180平-229平的明卫,客厅朝南,双卧朝南,明厨,主卧朝南的四居 。
*获取完整户型报告,同时会有免费语音讲解服务
免责声明:房源信息由网站用户提供,其真实性、合法性由信息提供者负责,最终以政府部门登记备案为准。本网站不声明或保证内容之正确性和可靠性,购买该房屋时,请谨慎核查。入学情况仅凭历史经验总结,在此不承诺升学事宜。请您在签订合同之前,切勿支付任何形式的费用,以免上当受骗。



