低楼层,小户型,出入方便,适合老年人居住。
-
78万
总价
-
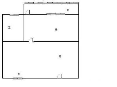
1室1厅
户型
-
53㎡
建筑面积
-
单价
14717元/平米
- 挂牌价格解析
-
楼层
低楼层/6层
- 咨询楼层
-
套内
暂无数据
- 咨询套内使用面积
-
楼型
板楼
-
朝向
南北
-
装修
毛坯
-
供暖
暂无数据
-
发布
2023-02-15
-
地铁
距1号线凤凰山站约503米
-
深度测评
小区天镜南苑(越城-城南街道)
-
更多
楼户比、楼层高度、交易历史、抵押信息
周边配套
地址:凤凰路25号
交通综合评分
查看全部5.8
“一般”
超过绍兴31.6%的小区
-
地铁公交
10.0
-
驾车出行
6.0
本月均价 18586元/m²
环比上月 上涨 2.16%
同比去年 下跌 2.35%
猜你喜欢
同小区其它房源
户型齐全,主打户型方正,明卫,客厅朝南,主卧朝南三居
天镜南苑户型主要有96平-184平的户型方正,明卫,客厅朝南,主卧朝南的三居 、90平-119平的户型方正,明厨,明卫,客厅朝南的二居 、160平-190平的户型方正,客厅朝南,双卧朝南,主卧朝南的四居 。
*获取完整户型报告,同时会有免费语音讲解服务
-
15788元/㎡
本月挂牌均价
-
0.97%
环比上月
免责声明:房源信息由网站用户提供,其真实性、合法性由信息提供者负责,最终以政府部门登记备案为准。本网站不声明或保证内容之正确性和可靠性,购买该房屋时,请谨慎核查。入学情况仅凭历史经验总结,在此不承诺升学事宜。请您在签订合同之前,切勿支付任何形式的费用,以免上当受骗。



