龙腾水岸花园 南北通透 次新房 有电梯 商品住宅鮀浦
-
37.8万
总价
-
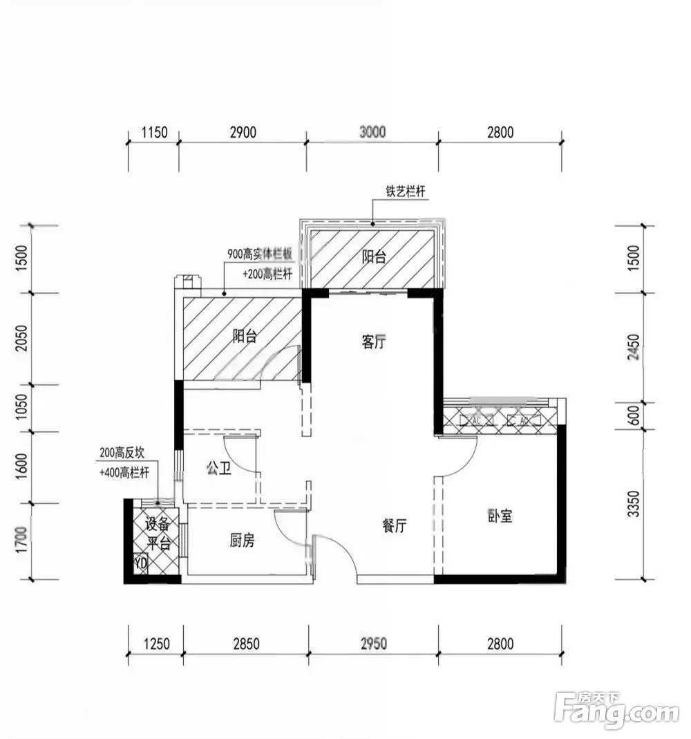
2室2厅1卫
户型
-
58㎡
建筑面积
买房加房产交流群,省钱不踩雷
3000+人正在热聊
-
单价
6517元/平米
- 挂牌价格解析
-
楼层
中层/14层
- 咨询楼层
-
套内
暂无数据
- 咨询套内使用面积
-
楼型
板楼
-
朝向
南北
-
装修
毛坯
-
年代
2023
-
发布
2026-03-20
-
地铁
暂无数据
-
深度测评
小区龙腾水岸花园(金平-鮀浦)
-
更多
楼户比、楼层高度、交易历史、抵押信息
房源描述(1)
-
核心卖点问经纪人
【房源简介】2023年建成,南北通透,空气流通,朝向良好,采光充足。正规两居室,空间利用率高,餐厅客厅可分离,生活动线清晰。清水房,装修成本低,直接装修省时省心。产权年限70年,价格37.8万,电梯房,基础设施完善,周边商圈发达,购物就医便捷。适合追求品质生活的您!
-
业主心态问经纪人
【业主心态】业主因资金周转需求,诚意出售此房。手续完备,随时可配合看房。我与业主关系密切,信任度高,能提供友好沟通服务。业主急售,议价空间大,期待与您洽谈!
-
小区配套问经纪人
位置:小区地理位置佳,绿化率高,居民素质高 配套:有健身器材,小型篮球场,可供小区居民使用 车位:停车位充足,建有地上停车场和地下车库 保安:小区内24保安巡逻
-
服务介绍问经纪人
本人从事房地产多年,公司有大量好房源,欢迎进入我的店铺查看,欢迎随时电话咨询,相信我的专业,为您置业安家保驾护航。
周边配套
交通综合评分
查看全部超过汕头0.0%的小区
-
地铁公交
10.0
本月均价 暂无均价
环比上月 持平
同比去年 持平 持平
猜你喜欢
同小区其它房源
-
9015元/㎡
本月挂牌均价
-
2.99%
环比上月
买房加房产交流群,省钱不踩雷
3000+人正在热聊
- 免费咨询
- 专业服务
- 区域解读
- 户型分析

