望公园 找我免费用 享额外折扣 熟悉楼盘 专做整个新溪片区
-
80万
总价
-
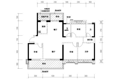
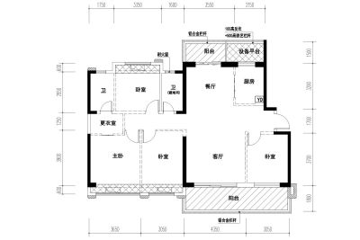
4室2厅2卫
户型
-
138㎡
建筑面积
买房加房产交流群,省钱不踩雷
3000+人正在热聊
加入群聊
-
单价
5797元/平米
- 挂牌价格解析
-
楼层
低层/31层
- 咨询楼层
-
套内
暂无数据
- 咨询套内使用面积
-
楼型
板楼
-
朝向
南
-
装修
毛坯
-
年代
2026
-
发布
2026-01-18
-
深度测评
小区誉禧阳光雅园(龙湖-陈厝合)
-
更多
楼户比、楼层高度、交易历史、抵押信息
房源描述(1)
周边配套
地址:鄱阳湖路5号(侨韵公园旁)
交通综合评分
查看全部8.2
“较好”
超过汕头0.0%的小区
-
地铁公交
10.0
-
驾车出行
10.0
-
城际交通
4.0
本月均价 暂无均价
环比上月 持平
同比去年 持平 持平
-
14183元/㎡
本月挂牌均价
-
0.01%
环比上月
买房加房产交流群,省钱不踩雷
3000+人正在热聊
加入群聊
- 免费咨询
- 专业服务
- 区域解读
- 户型分析
免责声明:房源信息由网站用户提供,其真实性、合法性由信息提供者负责,最终以政府部门登记备案为准。本网站不声明或保证内容之正确性和可靠性,购买该房屋时,请谨慎核查。入学情况仅凭历史经验总结,在此不承诺升学事宜。请您在签订合同之前,切勿支付任何形式的费用,以免上当受骗。


