新津片区 誉境阳光 现房随时可看 南北对流 中层 视野开阔
-
80万
总价
-
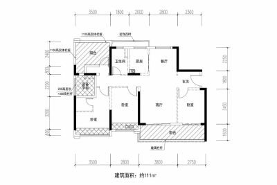
3室2厅2卫
户型
-
97㎡
建筑面积
买房加房产交流群,省钱不踩雷
3000+人正在热聊
-
单价
8247元/平米
- 挂牌价格解析
-
楼层
中层/32层
- 咨询楼层
-
套内
暂无数据
- 咨询套内使用面积
-
楼型
砖楼
-
朝向
南北
-
装修
毛坯
-
年代
2021
-
发布
2026-01-17
-
地铁
暂无数据
-
深度测评
小区誉境阳光花园(龙湖-新溪镇)
-
更多
楼户比、楼层高度、交易历史、抵押信息
房源描述(1)
-
核心卖点问经纪人
该房源为本人实地拍摄,照片~ 视频 全景均为本人现场拍摄, 掌握该房源的近期价格和情况。 本人承诺所发的房源均 (杜绝虚假),可为您节省时间!直接业主联系,谈价有优势,免绕弯。 本人主营东海岸的房子,熟悉东海岸周围所有小区的优缺点跟户型和所有在出售的房源!【另有多套房源出售,就算这套房源信息不合适,也有其他房源合适您】 咨询:15014302543 黄松杰
-
业主心态问经纪人
有心出售:看合在沟通价格!业主本身打算过几年才过来,当时还是专门找朋友才拿到此房源的。现在因为生意方面需要资金周转,所以才诚心出售此房源。
-
小区配套问经纪人
位置:小区地理位置佳,绿化,居民素质高配套:有健身器材,小型篮球场,可供小区居民使用车位:停车位充足,建有地上停车场和地下车库保安:小区内24保安巡逻
-
服务介绍问经纪人
我的宗旨:诚信为本 二手房的交易流程复杂,您需要一名专业和细心的经纪人、为您排忧解惑。本公司一直推行"公开资讯、公平交易、不吃差价”的经营理念。只为帮您找到“合适”自己的家。
-
税费分析房贷计算
业主有心出售,所以愿意付自己的个人所得税。 您只需交自己的契税就行,省了很多税费。
-
户型解读问经纪人
房屋户型方正,景观布局合理,设计实用,空间舒适,格局优越,采光通风良好
周边配套
交通综合评分
查看全部超过汕头0.0%的小区
-
地铁公交
10.0
-
驾车出行
10.0
-
城际交通
4.0
本月均价 10427元/m²
环比上月 下跌 3%
同比去年 下跌 4.22%
猜你喜欢
同小区其它房源
-
9520元/㎡
本月挂牌均价
-
2.36%
环比上月
买房加房产交流群,省钱不踩雷
3000+人正在热聊
- 免费咨询
- 专业服务
- 区域解读
- 户型分析


