保辉香景雅园 园心10楼保养新101平3房2厅2卫南北通透
-
136万
总价
-
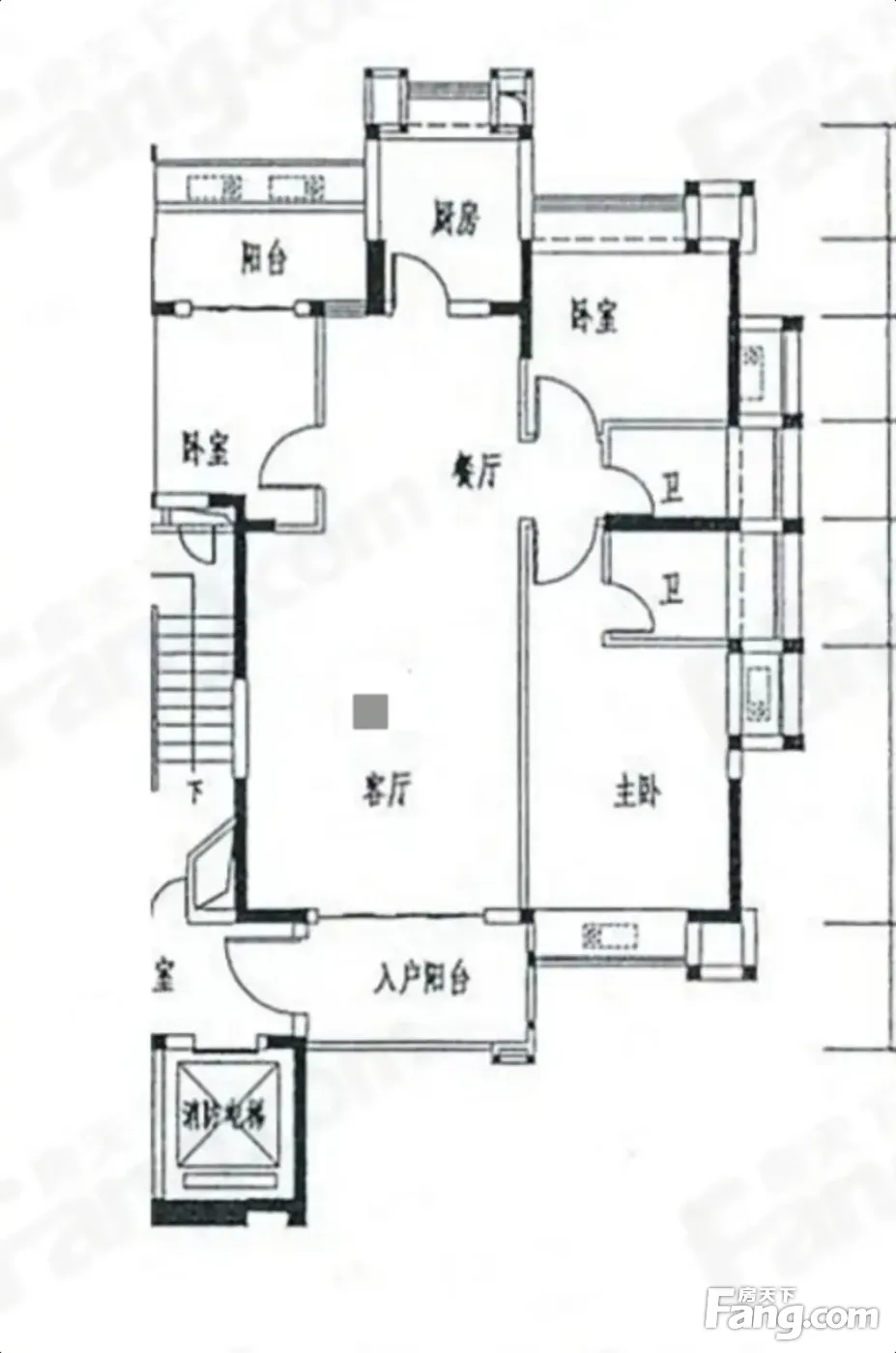
3室2厅2卫
户型
-
101㎡
建筑面积
买房加房产交流群,省钱不踩雷
3000+人正在热聊
-
单价
13465元/平米
- 挂牌价格解析
-
楼层
中层/18层
- 咨询楼层
-
套内
100㎡
- 咨询套内使用面积
-
楼型
板楼
-
朝向
南北
-
装修
精装修
-
年代
2015
-
发布
2025-12-07
-
地铁
暂无数据
-
深度测评
小区香景雅园(龙湖-高新区)
-
更多
楼户比、楼层高度、交易历史、抵押信息
房源描述(1)
-
核心卖点问经纪人
咨询可加我(VX)手机号码:150.139.14.699 【楼盘名称】:保辉香景雅居【地 段】:市区地段, 周边大型城, 市场都有,方便!房源详情【面 积】: 101【楼 层】: 10【售 价 】: 136万【详情】:小区绿化环境很好,室内格局方正,实用大!
-
业主心态问经纪人
业主购置新房,诚心出售此房,产权清晰,无任何纠纷,随时可交易,如需了解其他信息,请随时与我联系,随时恭候您的来电预约, 咨询了解看房。
-
小区配套问经纪人
小区配套24安保,一级物业,居住安全舒心 周边生活配套市场、医疗、银行、教育资源、生活服务、公园一应俱全
-
服务介绍问经纪人
您好,本人从事房产经纪行业工作12年,具有丰富的从业经验,熟悉小区,为您计算税费及房产咨询按揭办理,为您合理科学的规划,本人服务热情,周到,专业,真诚。现专做汕头地区一手房,二手房买卖。
-
税费分析房贷计算
过名各付:买卖双方各自承担自己过户所属的费用以及中介费。
-
户型解读问经纪人
户型方正、南北通透、动静分区、空间利用率高、全明通透的采光。
周边配套
交通综合评分
查看全部超过汕头22.4%的小区
-
地铁公交
10.0
-
城际交通
4.0
本月均价 13348元/m²
环比上月 下跌 1.14%
同比去年 下跌 11.8%
-
8169元/㎡
本月挂牌均价
-
1.78%
环比上月
买房加房产交流群,省钱不踩雷
3000+人正在热聊
- 免费咨询
- 专业服务
- 区域解读
- 户型分析

