充耀号9800元/平全园尚低 白坯7楼85平2房2厅双阳台
-
83.3万
总价
-
2室2厅1卫
户型
-
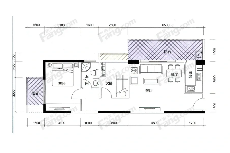
85㎡
建筑面积
买房加房产交流群,省钱不踩雷
3000+人正在热聊
-
单价
9800元/平米
- 挂牌价格解析
-
楼层
中层/18层
- 咨询楼层
-
套内
暂无数据
- 咨询套内使用面积
-
楼型
板楼
-
朝向
北
-
装修
毛坯
-
年代
2018
-
发布
2025-07-28
-
地铁
暂无数据
-
深度测评
小区充耀號(龙湖-龙湖区政府)
-
更多
楼户比、楼层高度、交易历史、抵押信息
房源描述(1)
-
核心卖点问经纪人
出售:充耀号 楼层:电梯7楼 户型:2房2厅 面积: 85平 装修:白坯房 价格:9800元/平 房源特点:花园小区中间楼层电梯7楼,70年产权正规住宅,刚需小户型85平正规2房2厅双阳台,性价比高,全园尚低价,小孩可读林百欣。
-
业主心态问经纪人
业主诚心出售房子,希望能找到有缘分之人接手爱宅
-
小区配套问经纪人
花园小区管理、停车方便 市区中心地点、周边生活配套完善:市场、超市、商场、饮食、配套齐全交通便利。
-
服务介绍问经纪人
本公司从事房产经纪行业多年,全市连网、代理出售一手、二手楼盘、办理按揭、房产过户、专业办理房产相关的各种业务,无论你是要买房、租房、寄租寄售,只要你的一个电话,我们将用心为你匹配真实有效理想的房源.
-
税费分析房贷计算
税费各付:按政策各自承担所属部分,契税:家庭名下一套房按交易所基准价与交易申报价两者孰高的1.%,家庭名下二套房按交易所基准价与交易申报价两者孰高的1%,家庭名下三套房以上按交易所基准价与交易申报价两者孰高的3%。
周边配套
交通综合评分
查看全部超过汕头92.8%的小区
-
地铁公交
10.0
-
城际交通
4.0
本月均价 13149元/m²
环比上月 上涨 1.15%
同比去年 下跌 10.1%
户型齐全,主打南北通透,全明格局三居
充耀號户型主要有106平-129平的南北通透,全明格局的三居 、81平-86平的南北通透,全明格局的二居 、123平-139平的南北通透,全明格局的四居 。
*获取完整户型报告,同时会有免费语音讲解服务
-
6928元/㎡
本月挂牌均价
-
1.05%
环比上月
买房加房产交流群,省钱不踩雷
3000+人正在热聊
- 免费咨询
- 专业服务
- 区域解读
- 户型分析


