观澜豪庭 豪华装修 4房 业主少住 有心出售 发财厝
-
460万
总价
-
4室2厅4卫
户型
-
228㎡
建筑面积
买房加房产交流群,省钱不踩雷
3000+人正在热聊
-
单价
20175元/平米
- 挂牌价格解析
-
楼层
高层/31层
- 咨询楼层
-
套内
227㎡
- 咨询套内使用面积
-
楼型
板楼
-
朝向
南北
-
装修
豪华装修
-
年代
2010
-
发布
2025-03-22
-
深度测评
小区观澜豪庭(金平-市政府)
-
更多
楼户比、楼层高度、交易历史、抵押信息
房源描述(1)
-
核心卖点问经纪人
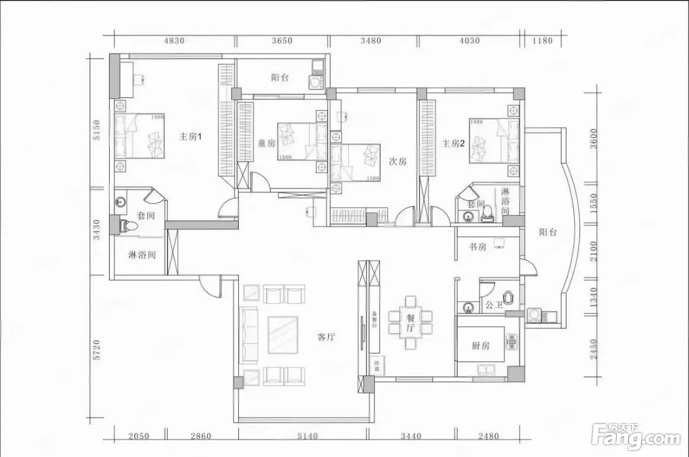
【房屋详情】 1.小区:观澜豪庭 2.本房型: 4房 2厅 4卫 3阳台 3..建筑面积:228 平方 4.房屋总价:460万 5.房屋装修: 简欧装修 6.房屋楼层:高楼层。 7.房屋特色: 东南北三面采光 南北通透,阳台,格局好,户型好,视野开阔,布局合理 8.看房情况:有钥匙 看房提前约 9.交通便利周边生活设施齐全,商场、市、菜市场、银行、 等! 备注:本人直接联系业主,不需经过其他中介或第三方,谈价有!本确保房源真实在售中
-
业主心态问经纪人
业主因不需居住到该房,故出售给有缘人业主有心出售,房子看合适了可再通过本人与业主协商其它细节条件以及价位,不需经过任何第三方.
-
小区配套问经纪人
小区环境优雅,配套成熟,周边交通便利,居住舒适。
-
服务介绍问经纪人
本人从事房产多年,有丰富的从业经验,熟悉各个一手二手楼盘户型,配套,周边环境以及未来发展,为你合理的购房计划。热情,周到,,真诚,希望有机会为你提供置业,为你找到满意的家。提供的都是专`业` !
-
税费分析房贷计算
买方契税首套1.5%,第二套2%,三套及三套起3%
周边配套
交通综合评分
查看全部超过汕头80.7%的小区
-
地铁公交
10.0
本月均价 15607元/m²
环比上月 上涨 0.09%
同比去年 下跌 12.37%
-
8533元/㎡
本月挂牌均价
-
1.69%
环比上月
买房加房产交流群,省钱不踩雷
3000+人正在热聊
- 免费咨询
- 专业服务
- 区域解读
- 户型分析


