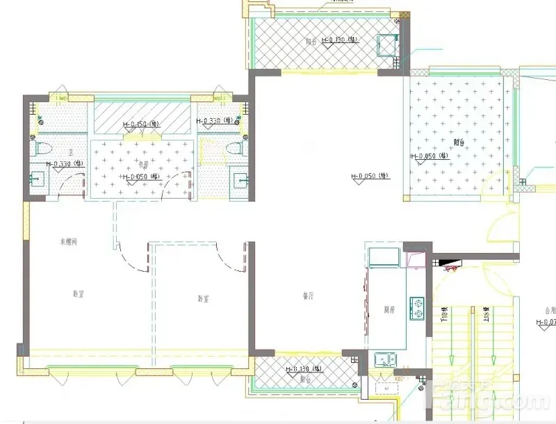
龙湖 中海悦江府 3室2厅 135.68㎡ 148万
-
148万元
总价
-
3室2厅2卫
户型
-
135.68㎡
建筑面积
买房加房产交流群,省钱不踩雷
3000+人正在热聊
加入群聊
-
单价
10908元/平米
- 挂牌价格解析
-
楼层
低层/28层
- 咨询楼层
-
套内
暂无数据
- 咨询套内使用面积
-
朝向
南北
-
发布
2025-12-12
-
深度测评
小区中海悦江府(龙湖-东海岸)
-
更多
楼户比、楼层高度、交易历史、抵押信息
业主自评
-
夏树繁花181
加入房天下142天
接电时间:09:00-22:00
周边配套
地址:东海岸新城韩津路12号
交通综合评分
查看全部8.2
“较好”
超过汕头0.0%的小区
-
地铁公交
10.0
-
驾车出行
10.0
-
城际交通
4.0
本月均价 10837元/m²
环比上月 上涨 3%
同比去年 上涨 5.81%
-
13102元/㎡
本月挂牌均价
-
0.29%
环比上月
买房加房产交流群,省钱不踩雷
3000+人正在热聊
加入群聊
联系业主
免责声明:房源信息由网站用户提供,其真实性、合法性由信息提供者负责,最终以政府部门登记备案为准。本网站不声明或保证内容之正确性和可靠性,购买该房屋时,请谨慎核查。入学情况仅凭历史经验总结,在此不承诺升学事宜。请您在签订合同之前,切勿支付任何形式的费用,以免上当受骗。

