金地格林世界圣琼斯湾 稀缺双拼别墅 南临河 超大花园
-
2100万
总价
-
4室2厅4卫
户型
-
271.9㎡
建筑面积
买房加房产交流群,省钱不踩雷
3000+人正在热聊
加入群聊
-
单价
77234元/平米
- 挂牌价格解析
-
楼层
3层
- 咨询楼层
-
套内
暂无数据
- 咨询套内使用面积
-
楼型
双拼
-
朝向
南
-
装修
精装修
-
年代
2008
-
发布
2026-04-17
-
地铁
距11号线(花桥-迪士尼)南翔站约1053米
-
咨询总首付
首付约628.9万
首付税费及佣金情况 -
深度测评
小区金地格林世界圣琼斯湾(嘉定-南翔)
-
更多
楼户比、楼层高度、交易历史、抵押信息
-
核验码
202510350294
房源描述(1)
-
核心卖点问经纪人
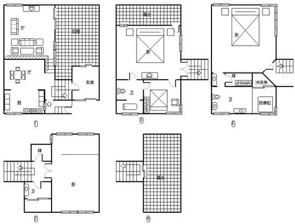
房屋介绍:房子是四房三厅四个卫生间 一楼是餐客厅分开的,客厅挑高有4米2左右,客厅朝南,临河,坐在客厅朝外看去,真的是十分惬意,二楼有三个房间,两间朝南,一间朝北,两个套房,二楼有三个卫生间, 三层是主卧+书房衣帽间+超大露台大概60平米左右.窗外见景,建议真的实地看看 周边商场: 印象城 ,山姆超市 558商场 中冶翔腾城市广场 学校:南翔小学,南翔幼儿园,嘉定二中,云翔小学,云翔幼儿园 南翔小学 留云中学等 交通:11号线南翔站,陈翔路站 房东心态:诚意卖房,到价可签字。
-
业主心态问经纪人
房东是非常诚意卖房的,房子是满五年的,产权清晰,无抵押,到价格可以签字,希望有喜欢,有缘人能喜欢他们的装修风格。
-
小区配套问经纪人
小区地理位置佳靠近印象城,周边有很完善的生活配套,绿化环境优越整洁,居民素质高,物业管理完善,适宜居住
-
服务介绍问经纪人
您好,我本人从事房地产多年有着丰富的房产专业知识,希望能给您带来帮助,很高兴为您服务! 同时我也一直秉承的是客户至上的理念,希望能帮助您买到想要喜欢的房子,有需要咨询了解相关房产问题可以直接电话联系。
-
税费分析房贷计算
关于本房的税费信息情况,请电话联系我,我将详细的为您讲解!
-
户型解读问经纪人
户型布局非常合理,房屋拥有相对宽松的尺寸,布局通透,动静分离,设计豪华
周边配套
地址:芳林路668弄
交通综合评分
查看全部6.6
“较好”
超过上海65.6%的小区
-
地铁公交
9.0
-
驾车出行
10.0
猜你喜欢
同小区其它房源
-
38677元/㎡
本月挂牌均价
-
持平
环比上月
买房加房产交流群,省钱不踩雷
3000+人正在热聊
加入群聊
- 免费咨询
- 专业服务
- 区域解读
- 户型分析
免责声明:房源信息由网站用户提供,其真实性、合法性由信息提供者负责,最终以政府部门登记备案为准。本网站不声明或保证内容之正确性和可靠性,购买该房屋时,请谨慎核查。入学情况仅凭历史经验总结,在此不承诺升学事宜。请您在签订合同之前,切勿支付任何形式的费用,以免上当受骗。


