大润发 十一中 景明花苑 一房一厅 采光好 看小区 证满
-
90万
总价
-
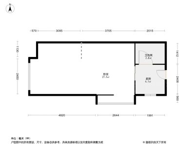
1室1厅
户型
-
65.79㎡
建筑面积
-
单价
13680元/平米
- 挂牌价格解析
-
楼层
中楼层/12层
- 咨询楼层
-
套内
暂无数据
- 咨询套内使用面积
-
楼型
板楼
-
朝向
东
-
装修
简装
-
供暖
暂无数据
-
发布
2024-07-28
-
深度测评
小区景明花园(洛江-洛江)
-
更多
楼户比、楼层高度、交易历史、抵押信息
周边配套
地址:洛江区安达路
交通综合评分
查看全部6.7
“较好”
超过泉州56.6%的小区
-
地铁公交
10.0
-
驾车出行
9.0
本月均价 12176元/m²
环比上月 上涨 0.04%
同比去年 下跌 14.74%
猜你喜欢
同小区其它房源
户型齐全,主打一居
景明花园户型主要有44平-61平的的一居 、63平-75平的户型方正,明厨的二居 、137平-149平的户型方正,明厨,客厅朝南,主卧朝南的三居 。
*获取完整户型报告,同时会有免费语音讲解服务
免责声明:房源信息由网站用户提供,其真实性、合法性由信息提供者负责,最终以政府部门登记备案为准。本网站不声明或保证内容之正确性和可靠性,购买该房屋时,请谨慎核查。入学情况仅凭历史经验总结,在此不承诺升学事宜。请您在签订合同之前,切勿支付任何形式的费用,以免上当受骗。



