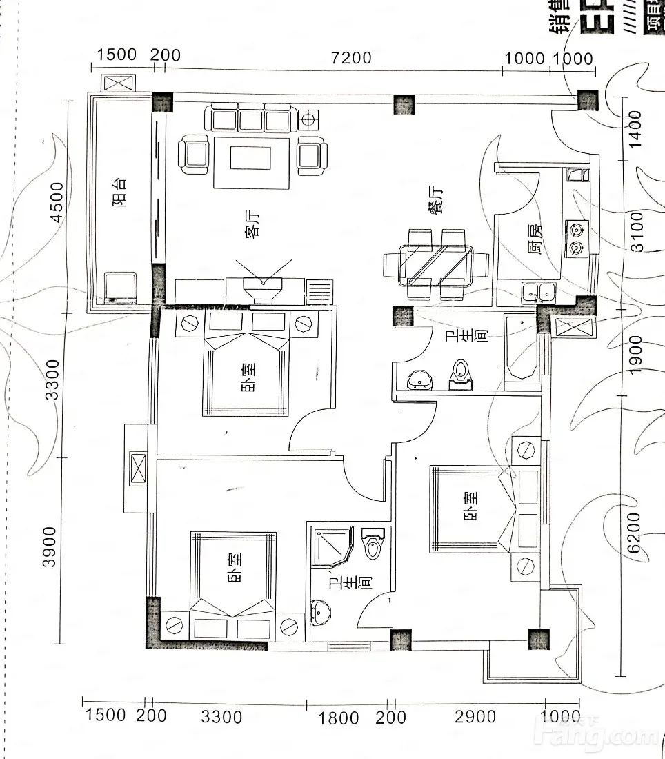
自售3室2厅2卫另1车位。高层三面采光128.18。
-
110万元
总价
-
3室2厅2卫
户型
-
128.18㎡
建筑面积
-
单价
8582元/平米
- 挂牌价格解析
-
楼层
高层/17层
- 咨询楼层
-
套内
暂无数据
- 咨询套内使用面积
-
朝向
东南
-
年代
1900
-
发布
2025-11-11
-
深度测评
小区东方花园城(丰泽-城东)
-
更多
楼户比、楼层高度、交易历史、抵押信息
业主自评
-
wap3286793457
加入房天下2848天
接电时间:08:00-22:00
标题: 东南向三居室,东方花园城128平温馨之家 正文: 128平的三室两厅两卫,东南朝向让家里整天都亮堂堂的,尤其是冬天阳光洒进来特别暖和。客厅和主卧都朝东南,通风特别好,夏天开窗就有穿堂风,完全不会闷。 小区位置在丰泽区通源街750号,周边生活特别方便,超市、菜市场走路就能到。小区环境安静,绿化做得不错,平时下楼散步很舒服。如果想重新装修也有很大的发挥空间。 总价135万,算下来单价很划算。这个面积段的三居室在附近不多见,适合一家人住。如果有兴趣的话,欢迎来看房,咱们可以详细聊聊!
标题: 东南向三居室,东方花园城128平温馨之家 正文: 128平的三室两厅两卫,东南朝向让家里整天都亮堂堂的,尤其是冬天阳光洒进来特别暖和。客厅和主卧都朝东南,通风特别好,夏天开窗就有穿堂风,完全不会闷。 小区位置在丰泽区通源街750号,周边生活特别方便,超市、菜市场走路就能到。小区环境安静,绿化做得不错,平时下楼散步很舒服。如果想重新装修也有很大的发挥空间。 总价135万,算下来单价很划算。这个面积段的三居室在附近不多见,适合一家人住。如果有兴趣的话,欢迎来看房,咱们可以详细聊聊!
周边配套
交通综合评分
查看全部6.7
“较好”
超过泉州87.5%的小区
-
地铁公交
10.0
-
驾车出行
9.0
本月均价 11393元/m²
环比上月 下跌 1.89%
同比去年 下跌 7.24%
猜你喜欢
同小区其它房源
户型齐全,主打户型方正,明卫,客厅朝南,双阳台,双卧朝南,主卧朝南三居
东方花园城户型主要有91平-125平的户型方正,明卫,客厅朝南,双阳台,双卧朝南,主卧朝南的三居 、91平-91平的户型方正,明厨,明卫,双阳台的二居 。
*获取完整户型报告,同时会有免费语音讲解服务
-
14825元/㎡
本月挂牌均价
-
1.67%
环比上月
联系业主
免责声明:房源信息由网站用户提供,其真实性、合法性由信息提供者负责,最终以政府部门登记备案为准。本网站不声明或保证内容之正确性和可靠性,购买该房屋时,请谨慎核查。入学情况仅凭历史经验总结,在此不承诺升学事宜。请您在签订合同之前,切勿支付任何形式的费用,以免上当受骗。

