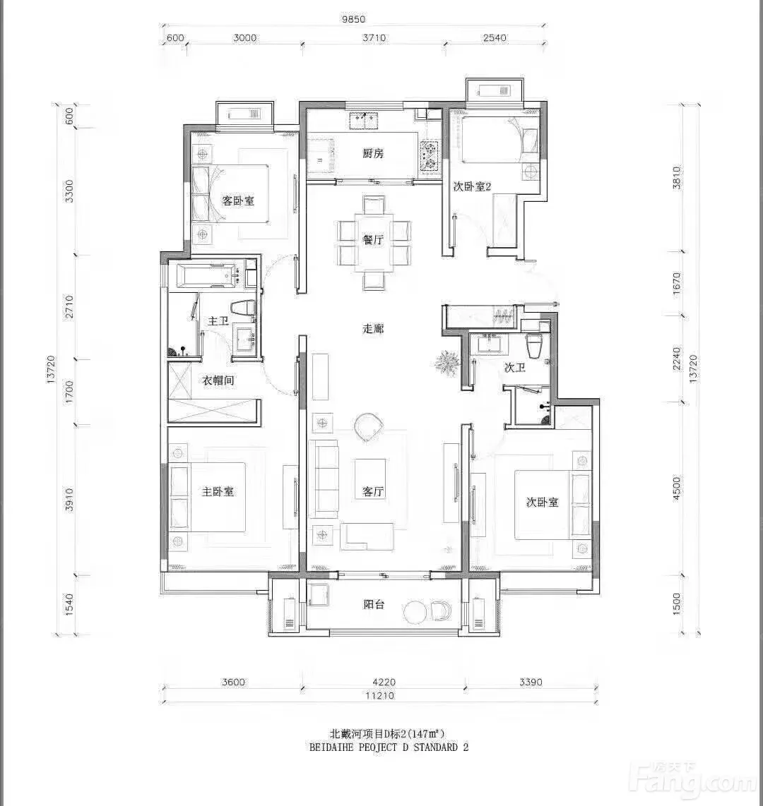
北戴河 富力和园 4室2厅
-
130万元
总价
-
4室2厅2卫
户型
-
144.83㎡
建筑面积
-
单价
8976元/平米
- 挂牌价格解析
-
楼层
11层
- 咨询楼层
-
套内
暂无数据
- 咨询套内使用面积
-
朝向
南北
-
发布
2024-09-29
-
深度测评
小区富力和园(北戴河-北戴河其他)
-
更多
楼户比、楼层高度、交易历史、抵押信息
业主自评
-
59450恒星59450
加入房天下3666天
接电时间:09:00-22:00
2020年9月办理入住,基本没怎么住过!
2020年9月办理入住,基本没怎么住过!
周边配套
地址:金城路45号,高铁站东两公里
交通综合评分
查看全部7.3
“较好”
超过秦皇岛81.0%的小区
-
地铁公交
10.0
-
驾车出行
7.0
-
城际交通
4.0
-
13488元/㎡
本月挂牌均价
-
0.56%
环比上月
联系业主
免责声明:房源信息由网站用户提供,其真实性、合法性由信息提供者负责,最终以政府部门登记备案为准。本网站不声明或保证内容之正确性和可靠性,购买该房屋时,请谨慎核查。入学情况仅凭历史经验总结,在此不承诺升学事宜。请您在签订合同之前,切勿支付任何形式的费用,以免上当受骗。

