中欧青特滨湖国际 4室2厅 148.81平
-
230万
总价
-
4室2厅1卫
户型
-
148.81㎡
建筑面积
买房加房产交流群,省钱不踩雷
3000+人正在热聊
-
单价
15456元/平米
- 挂牌价格解析
-
楼层
中层/16层
- 咨询楼层
-
套内
147.81㎡
- 咨询套内使用面积
-
朝向
南
-
装修
精装修
-
年代
2025
-
发布
2026-03-23
-
地铁
暂无数据
-
咨询总首付
首付约101万
首付税费及佣金情况 -
深度测评
小区中欧青特滨湖国际(城阳-高新区)
-
更多
楼户比、楼层高度、交易历史、抵押信息
房源描述(1)
-
核心卖点问经纪人
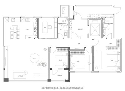
核心此房一梯一户,出门祥茂河,蓝足球场自带业主会所元宝户型 小区介绍新小区,总层16-17层的大平层,一梯一户,得房高,落地大窗,户型好 适宜人群适合改善客户群体,对视野和采光有要求的客户可看,另喜欢大平层的客户,此房没问题 装修描述毛坯原始户型,动静分离户型,客户西侧,有西窗,景色好,看房方便
-
业主心态问经纪人
房东置换,诚心出售,可以再谈,欢迎看房,随时恭候。
-
小区配套问经纪人
小区地理位置佳,绿化环境优越整洁,居民素质高,物业管理完善,适宜居住
-
服务介绍问经纪人
本人做房产多年,一直本着的房产知识,为您,我会在短的时间内帮您买好满意的房子,不让您错失任何好房子,更不让您每天为买房的事烦心,欢迎随时拨打我电话。
-
税费分析房贷计算
关于本房的税费信息情况,请电话联系我,我将详细的为您讲解!
-
户型解读问经纪人
房屋拥有相对宽松的尺寸,布局通透,动静分离,设计豪华
周边配套
本月均价 15764元/m²
环比上月 下跌 1%
同比去年 上涨 24.59%
猜你喜欢
同小区其它房源
-
12048元/㎡
本月挂牌均价
-
0.45%
环比上月
买房加房产交流群,省钱不踩雷
3000+人正在热聊
- 免费咨询
- 专业服务
- 区域解读
- 户型分析


