新街坊小区阳光6楼,可以任意装修,看房方便有钥匙
-
54.9万
总价
-
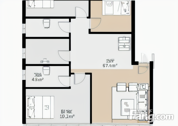
3室2厅
户型
-
119.22㎡
建筑面积
-
单价
4605元/平米
- 挂牌价格解析
-
楼层
高楼层/6层
- 咨询楼层
-
套内
暂无数据
- 咨询套内使用面积
-
朝向
南北
-
装修
简装
-
供暖
暂无数据
-
发布
2023-03-13
-
地铁
距1号线呼钢东路站约907米
-
深度测评
小区新街坊(回民-中山西路)
-
更多
楼户比、楼层高度、交易历史、抵押信息
周边配套
地址:区新华西街回民区政府旁(新华公园对面)
交通综合评分
查看全部5.2
“一般”
超过呼和浩特17.4%的小区
-
地铁公交
10.0
-
城际交通
4.0
本月均价 7082元/m²
环比上月 下跌 3.29%
同比去年 下跌 8.68%
猜你喜欢
同小区其它房源
户型齐全,主打明厨,客厅朝南,主卧朝南二居
新街坊户型主要有84平-103平的明厨,客厅朝南,主卧朝南的二居 、85平-145平的明厨,客厅朝南的三居 。
*获取完整户型报告,同时会有免费语音讲解服务
-
7838元/㎡
本月挂牌均价
-
0.24%
环比上月
免责声明:房源信息由网站用户提供,其真实性、合法性由信息提供者负责,最终以政府部门登记备案为准。本网站不声明或保证内容之正确性和可靠性,购买该房屋时,请谨慎核查。入学情况仅凭历史经验总结,在此不承诺升学事宜。请您在签订合同之前,切勿支付任何形式的费用,以免上当受骗。



